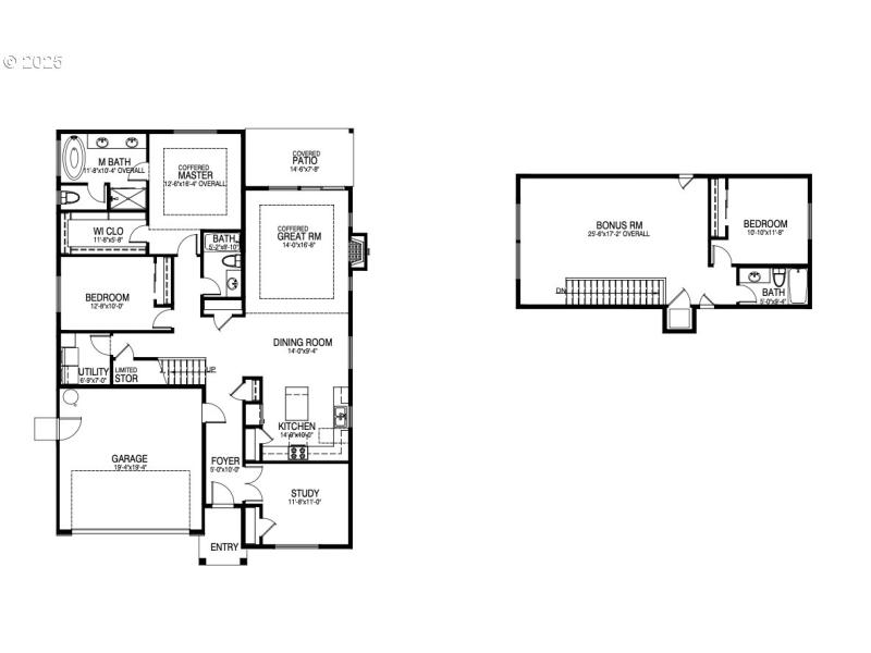
Welcome to Oak Ridge, an 18-lot project in McMinnville, built by Chad E. Davis Construction LLC. This Project is conveniently located off of Baker Creek Road, offering quick access to Highway 99 and historic Downtown Third Street. The "Colton" plan features four bedrooms, three full bathrooms, and a large bonus room upstairs. The primary room is on the main level with two other bedrooms on the same level. Upstairs, you will find the large bonus space, another bedroom, and a full bathroom. The kitchen will boast quartz countertops, gas appliances, a pantry, and a sizeable island. With quality finishes throughout, a gas fireplace, coffered ceilings, and a landscaped/fenced backyard, this home will be a welcome addition to McMinnville's growing community. *OPEN HOUSES: Join us each Saturday and Sunday from 12 to 4 PM at our model home, 1518 NW Tracy Street (Lot 30). The Project is best found by taking a right onto NW Shadden Drive, then left onto NW Tracy Street.
Located on Tracy Street off of Pinehurst Drive
Dwelling Type: Residential
Subdivision: OAK RIDGE MEADOWS
Year Built: 2025, County: US
Located on Tracy Street off of Pinehurst Drive
Listing is courtesy of Willcuts Company Real Estate
Sign in to your account to continue