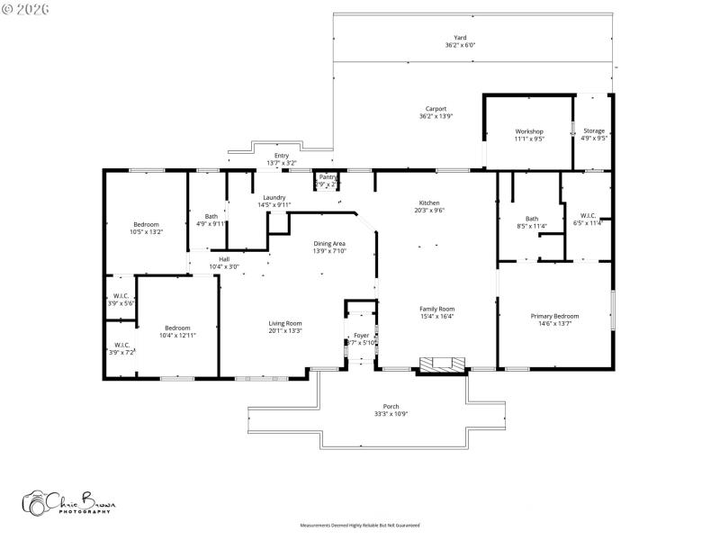
Spacious double-wide manufactured home offering a functional and comfortable layout with generous living areas. Open kitchen with island seating flows into the dining and living spaces, creating a welcoming environment for everyday living. Multiple bedrooms, ample storage, and large windows provide great natural light throughout. Home is being sold AS-IS, with seller to do no repairs. Located in the well-maintained Indian Bluff Mobile Home Park with convenient access to shopping, dining, and major routes. A great opportunity for affordable living in an established community.
From SE 122nd Ave, turn east into Indian Bluff Mobile Home Park.
Dwelling Type: Residential
Subdivision: Indian Bluff Mobile Home Park
Year Built: 1985, County: US
From SE 122nd Ave, turn east into Indian Bluff Mobile Home Park.
Listing is courtesy of Berkshire Hathaway HomeServices NW Real Estate
Sign in to your account to continue