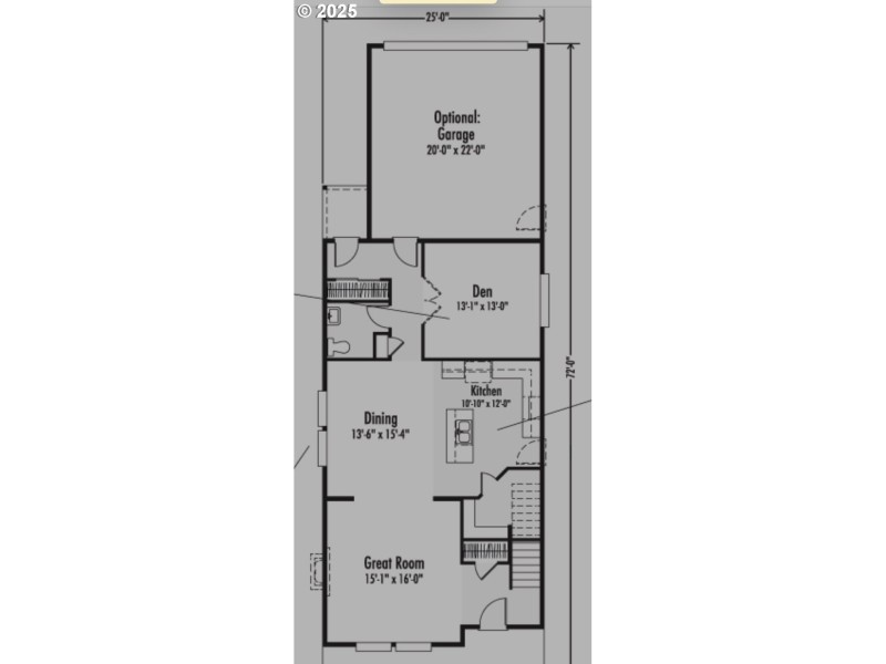
Two-story residential home located on a private dead-end street.The upper level includes three bedrooms, a loft, and a laundry room. The primary bedroom features vaulted ceilings, a walk-in closet, and an attached bathroom. The main level offers a great-room style layout with combined living, kitchen, and dining areas, along with a separate den. The floor plan provides multiple functional spaces across both levels. 2-car garage, plus large, fenced yard. Property is being sold as-is. HOA was set up, and no one participates in it/at no cost, bylaws recorded on the title.
Scholls Ferry Rd, West on Crestwood Drive, Near Red Tail Golf Course
Dwelling Type: Residential
Subdivision: N/A
Year Built: 2014, County: US
Scholls Ferry Rd, West on Crestwood Drive, Near Red Tail Golf Course
Listing is courtesy of Real Broker
Sign in to your account to continue