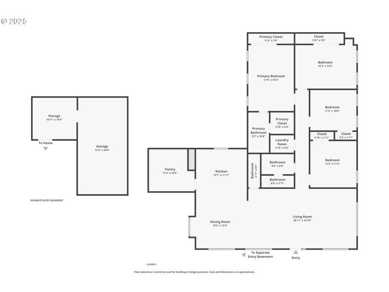
Unique opportunity for an owner/user to purchase a meticulously renovated live/work property in Camas, WA. With Neighborhood Commercial zoning the property is suited for a variety of commercial uses, and it is also eligible for 5% down conventional financing. All new systems including electrical, plumbing, HVAC, roof, and windows will help to minimize out of pocket costs as well as ongoing maintenance and repairs. Located in the highly sought after Camas, WA submarket, the owner will also enjoy no state income tax and eligibility for the top- rated Camas school district. Further differentiating the property is it’s peaceful, parklike setting amongst the trees and the opportunity to acquire an adjoining 0.20 acre lot for future expansion. Contact the broker to schedule a tour today.
WA-14 to Exit 12, first roundabout exit onto SW 6th Ave, .5mi to property
Dwelling Type: CommercialSale
Subdivision: N/A
Year Built: 1949, County: US
WA-14 to Exit 12, first roundabout exit onto SW 6th Ave, .5mi to property
Listing is courtesy of Keller Williams Realty
Sign in to your account to continue