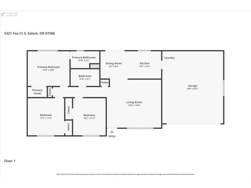
FULLY REMODELED ranch-style home on a cul-de-sac with a spacious lot! Bright interior features a generous living room, dining area, and beautiful kitchen with (new 2026) cabinets, quartz countertops, and appliances. Move-in ready with 2026 updates including roof, gutters, furnace, duct-work, siding, windows, attic & crawl space insulation, flooring, and interior/exterior paint, plus fully remodeled bathrooms. Like new from top to bottom!
Kuebler - South on Skyline - Left on Maplewood - Left on Fox
Dwelling Type: Residential
Subdivision: N/A
Year Built: 1981, County: US
Kuebler - South on Skyline - Left on Maplewood - Left on Fox
Listing is courtesy of Knipe Realty ERA Powered
Sign in to your account to continue