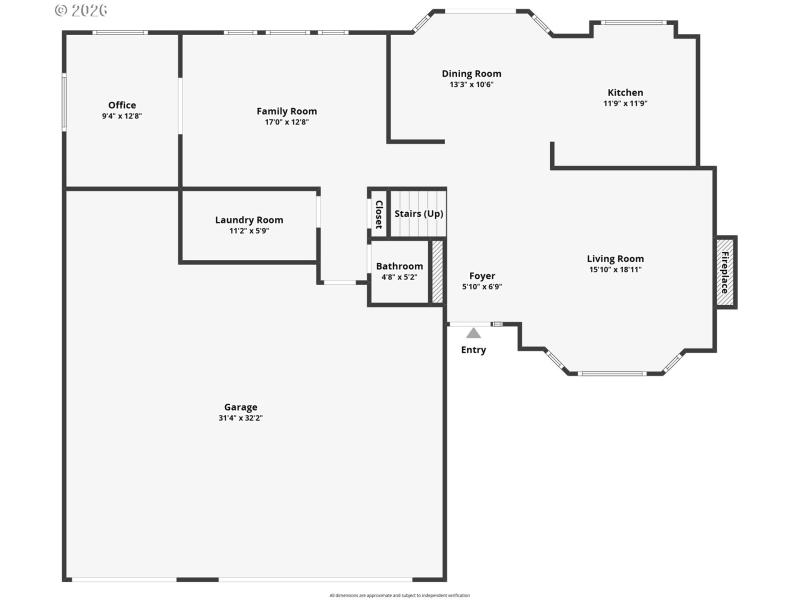
Tucked into one of Charbonneau’s most peaceful settings, this spacious tri-level home backs to a beautiful green space and offers a sense of privacy that is increasingly hard to find. Set on a generous .28-acre lot, the home features 2,529 square feet of flexible living space including bonus areas for hobbies and storage. The floor plan includes 3 bedrooms, 2.5 baths and a dedicated office, along with multiple living areas for gathering with family and friends. Large windows capture territorial views over the neighboring farmland and bring in natural light throughout the home.Outdoor spaces are equally inviting with a spacious patio, water feature and landscaped yard. The oversized three-car garage with additional shop area provides exceptional storage and workspace for projects, gear, hobbies or to park a golf cart. Located in the sought-after Charbonneau community with access to neighborhood amenities including a dog park, 4 swimming pools and just minutes from the Charbonneau Clubhouse and golf center. Enjoy the balance of peaceful surroundings and community living.
French Prairie to Country View Lane
Dwelling Type: Residential
Subdivision: N/A
Year Built: 1991, County: US
French Prairie to Country View Lane
Listing is courtesy of eXp Realty, LLC
Sign in to your account to continue