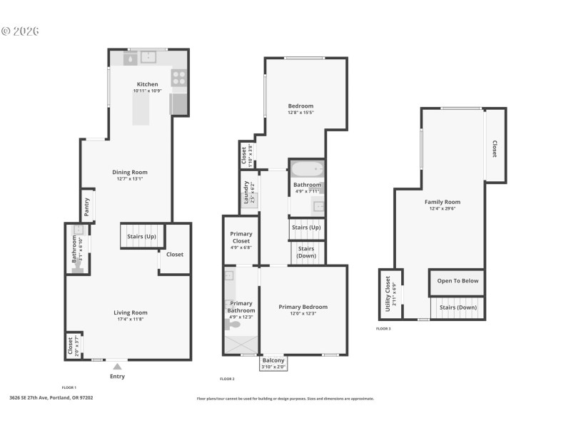
Welcome to your ideal Creston/Clinton lifestyle! This thoughtfully designed modern home is just steps from the vibrant Clinton Corridor, where top-rated eateries, hip shops, everyday conveniences create one of Southeast Portland's most sought-after urban neighborhoods and NO HOA's. Nestled in the heart of the Creston/Clinton area, you'll enjoy a walkable, bikeable lifestyle with easy access to numerous bike boulevards, transit options and quick connections to the rest of the city. Step inside and watch natural light pour through an open, well-planned floor plan designed for both everyday living and entertaining. The modern chef's kitchen features quality custom cabinets and flows seamlessly into living spaces with beautiful hardwood floors. With 3 bedrooms and 2.5 baths, including a wonderful master suite, this home offers comfort and style with thoughtful finishes throughout. Enjoy an easy commute with multiple bike and bus routes nearby, including bike-friendly greenways on SE Clinton Street and frequent transit service on Division and Clinton. Just a short stroll away, explore neighborhood favorites along the Clinton/Davidson commercial corridors — from local cafes, bakeries and coffee roasters to acclaimed restaurants, pubs, and boutique shops that define Portland's dynamic food and retail scene. A must-see home in a wonderful neighborhood setting that blends style, convenience and urban living — schedule your showing today! [Home Energy Score = 8. HES Report at https://rpt.greenbuildingregistry.com/hes/OR10171561]
SE 28th, right on SE Rhone St, Right on Se 27th Ave
Dwelling Type: Residential
Subdivision: CRESTON - KENILWORTH
Year Built: 2018, County: US
SE 28th, right on SE Rhone St, Right on Se 27th Ave
Listing is courtesy of Redfin
Sign in to your account to continue