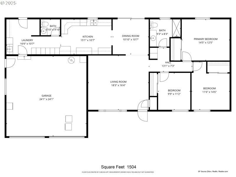
The convenience on one level living. One owner custom-built 2003 ranch style home with cover porch. Three bedrooms and 1.5 baths. The large pass-through kitchen is the center of the home, offering solid wood cabinetry, a large pantry space, attached laundry room and half bath. The open living and dining areas boast newer Laminate flooring. The dining room opens to an expansive, 10ft x 44ft, covered patio, perfect for outdoor entertaining. The home is situated on just under a half-acre with a large, 40ft x 30ft (1,200 square foot) shop with lofted area and office space with a second half bath. The oversized role up door provides a twelve-foot clearance. The lot and yard are fully fenced.
S. Pacific Ave, east on Willow. House on north side of street
Dwelling Type: Residential
Subdivision: N/A
Year Built: 2003, County: US
S. Pacific Ave, east on Willow. House on north side of street
Listing is courtesy of Windermere Northwest Living
Sign in to your account to continue