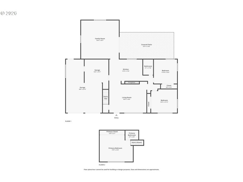
Well-maintained and thoughtfully improved, this home offers comfort, space, and room to make it your own. Located on a quiet dead-end street, it offers a peaceful setting with everyday conveniences close by. A large, light-filled family room with abundant windows opens to the backyard and covered patio, creating an easy indoor-outdoor connection.Major improvements include a roof is only 5 years old, an updated kitchen, brand new carpet, and updated lighting. Original hardwood floors add warmth and character, and a wood-burning fireplace creates a cozy gathering space.The layout provides nice separation of space and practical storage throughout. The extra-deep garage includes a workbench, ideal for projects and hobbies.The spacious yard is a standout feature, offering plenty of room for gardening, play, pets, or future projects. With generous outdoor space, there’s flexibility to maximize the property’s potential, plus ample room for an RV, or additional parking.Comfortable as-is with room to personalize, this home is a great opportunity in a peaceful location. An offer deadline has been set for 2/22/2026 by 5pm
Royal Ave to Taney St to Bell Ave to Ellsworth St
Dwelling Type: Residential
Subdivision: DANEBO
Year Built: 1951, County: US
Royal Ave to Taney St to Bell Ave to Ellsworth St
Listing is courtesy of Hybrid Real Estate
Sign in to your account to continue