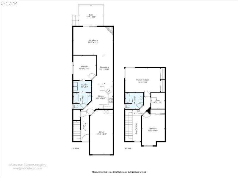
Original Owner, Move-In Ready, Major Updates Done!Welcome Home to easy living in SE Hillsboro!Maintained by its original owner since 2000, this charming attached home blends comfort, updates, and a layout that truly works for everyday life. Cozy up in the inviting living room with a gas fireplace and enjoy seamless indoor-outdoor living with a sliding glass door off of the living room that opens to your private composite deck (new 2023) and fully fenced backyard — perfect for summer evenings, morning coffee, or tending to the raised garden beds.Functional layout offering a main-level bedroom suite, full bathroom, and laundry room with full-size washer & dryer.Single-car attached garage for convenience. Kitchen with all appliances. Upstairs you'll find: two additional bedrooms, full bathroom, bonus den/nursery/home office, major updates already done for you: new composition roof (2023) fresh exterior paint (2023), updated vinyl windows throughout, new water heater (2024)Only one shared wall, giving you the low-maintenance lifestyle of attached living with a comfortable sense of privacy.Perfect for first-time buyers, downsizers, or anyone wanting a move-in ready home in the heart of Hillsboro. Conveniently located with easy access to parks, shopping, dining, highway 26, and major employers in the Willamette Valley. Homes with this layout, updates, and pride of ownership don’t last long.
Main Street to Brookwood, Libby Court off of Brookwood
Dwelling Type: Residential
Subdivision: Brookwood Bluff
Year Built: 2000, County: US
Main Street to Brookwood, Libby Court off of Brookwood
Listing is courtesy of John L. Scott Market Center
Sign in to your account to continue