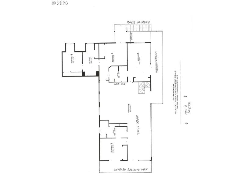
Experience breathtaking views from this custom-designed Tudor-style home on over 11 acres. Nestled high in Eugene's sought-after Coburg Hills and located within a private gated neighborhood known as Cloud Nine Ranch, this home offers million-dollar view with stunning sunsets and inspiring city/night lights. The many expansive parcels of this neighborhood share private access and a community well known for some of the finest water in the valley. This home is well suited for multi-generational living, offering ample spaces for both family and entertainment. Inside, you'll find a beautifully crafted interior that combines contemporary design with Old World charm, rich wood surfaces, abundant natural light, and soaring ceilings throughout. Whether it's hosting a dinner party, displaying your finest artwork, or relaxing with family, you'll appreciate the room to grow and entertain. The main level features a spacious kitchen, breakfast nook, cozy family room, formal living and dining rooms, one of two laundry rooms within the home, and a luxurious primary suite complete with a walk-in shower, jacuzzi tub, walk-in closet, and valley views. Also on the main level is an additional large bedroom with its own bathroom and separate entrance that’s perfect for guests or an office. Upstairs, you'll find a large bonus/family room with a wet bar, three generously sized bedrooms, two full bathrooms, a helper’s quarters (Bedroom 6) with its own private access. The second laundry room, complete with a utility sink and storage, is also conveniently located on this upper level. Above the three-car garage, the 800 sf separate guest unit features a kitchenette, full bathroom, balcony, and private entrance, with easy access to the main house and lower laundry. Stay comfortable year-round with efficient forced-air HVAC systems or relax by the wood fireplace with a Heatilator fan. Enjoy lots of wildlife and peaceful surroundings in this unparalleled lifestyle!
East on Van Duyn Rd from I-5 exit 199, right on Coburghills Drive
Dwelling Type: Residential
Subdivision: N/A
Year Built: 2007, County: US
East on Van Duyn Rd from I-5 exit 199, right on Coburghills Drive
Listing is courtesy of ICON Real Estate Group
Sign in to your account to continue