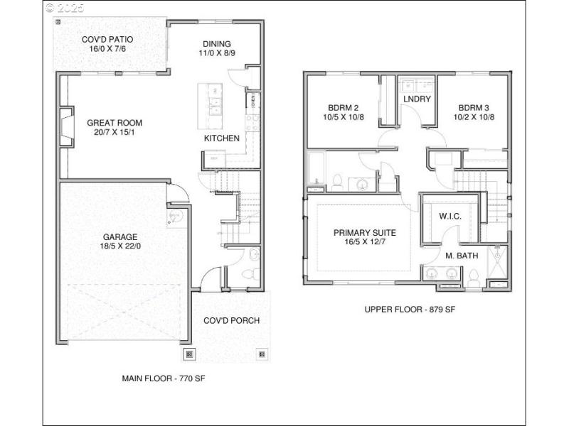
The 1649 plan boasts an open concept living space with ample natural light & 9' ceilings. The kitchen features a pantry and a separate dining nook, complete with laminate flooring throughout the main floor. Upstairs you will find 3 Bedrooms including a large primary suite with an ensuite bathroom and walk in closet. Front yard landscaping and maintenance are included plus a nice size fully fenced backyard! Estimated Completion - January 2026. Photos are examples. Come see me at the model home!
I-5 N, TAKE EXIT 21, RIGHT ONTO LEWIS RIVER RD, LEFT ON MCCRACKEN RD
Dwelling Type: Residential
Subdivision: ALDER & ASH
Year Built: 2025, County: US
I-5 N, TAKE EXIT 21, RIGHT ONTO LEWIS RIVER RD, LEFT ON MCCRACKEN RD
Listing is courtesy of Holt Homes Realty, LLC
Sign in to your account to continue