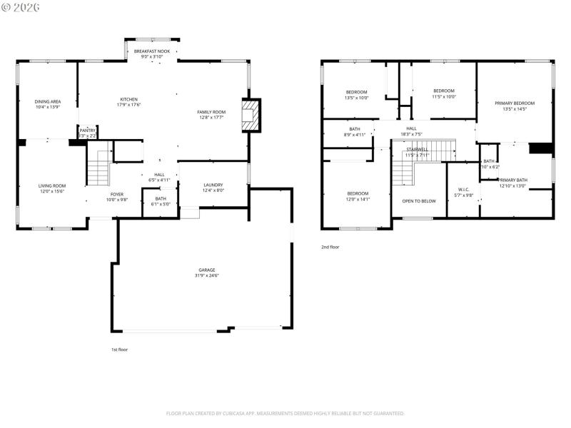
Welcome to this inviting home located in Roger's Park neighborhood, featuring beautiful maple floors and maple cabinetry that add warmth and timeless character throughout the living spaces. The functional floor plan offers a comfortable flow between rooms, making everyday living and entertaining easy.Step outside to a spacious back deck, an ideal spot to relax or gather while taking in peaceful territorial views. The backyard is designed for low-maintenance enjoyment with turf, creating a versatile outdoor space for a variety of uses.Conveniently located in close proximity to Ibach Park, this home offers easy access to outdoor recreation while remaining close to everyday amenities and commuting routes.With its thoughtful layout, inviting interior finishes, and enjoyable outdoor spaces, this property offers a wonderful opportunity to settle into a comfortable and well-located home.
SW Koller
Dwelling Type: Residential
Subdivision: N/A
Year Built: 2001, County: US
SW Koller
Listing is courtesy of Keller Williams Realty Portland Premiere
Sign in to your account to continue