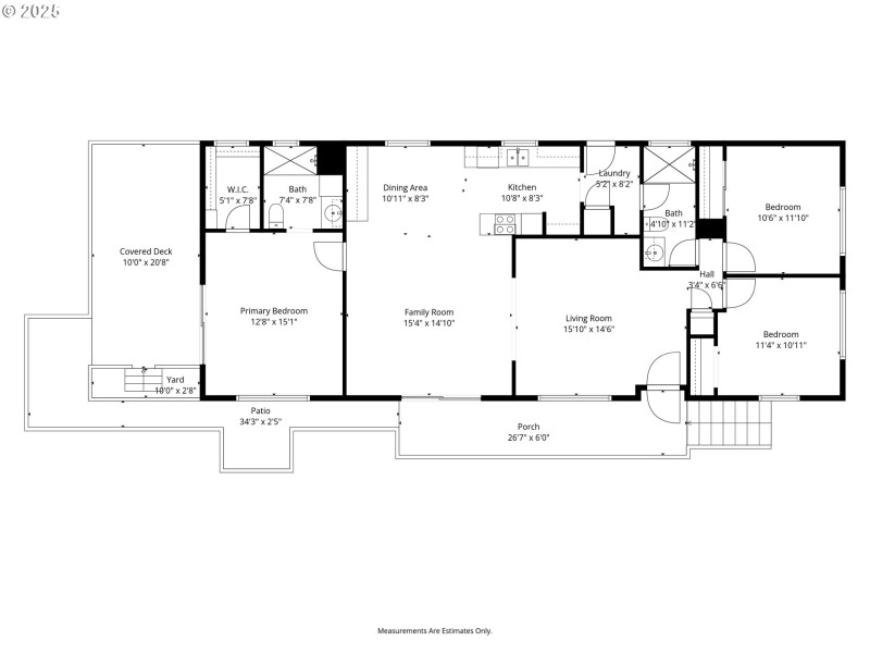
Spacious 3-bedroom, 2-bath double-wide manufactured home offering 1,536 square feet in the peaceful Fair Oaks 55+ community. Situated on a nice-size lot with mature trees, this home features a covered back deck, new wheelchair ramp, driveway with carport, and an additional storage shed. Inside, the functional floor plan includes a generous primary suite with recently updated bathroom and widened doorways for wheelchair accessibility. Conveniently located near shopping and restaurants, this home offers comfortable living with the opportunity for a new owner to add personal touches over time while enjoying a quiet, well-established community.
121st Ave from 4th Plain or 49th St., As you enter the park keep going straight, MFH on right
Dwelling Type: Residential
Subdivision: FAIR OAKS
Year Built: 1975, County: US
121st Ave from 4th Plain or 49th St., As you enter the park keep going straight, MFH on right
Listing is courtesy of Berkshire Hathaway HomeServices NW Real Estate
Sign in to your account to continue