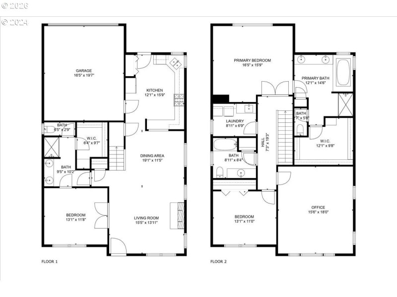
Welcome to the thoughtfully designed Villebois community! This beautiful home is perfectly positioned across from the serene Graham Oaks Nature Preserve & Tonquin Trail... a front-row seat to nature’s beauty with ever-changing seasonal views right outside your door. Cozy up by the gas fireplace or enjoy the two covered patios & your own adorable private courtyard! A spacious main-level bedroom with adjacent full bathroom includes a WI-shower, WI-closet & double sinks that truly sets this home apart, offering exceptional flexibility for multi-generational living or guests. Upstairs, you will find the Primary bedroom with large bathroom that includes a soaking tub, WI-shower, WI-closet & double sinks. You will also find a large bonus room overlooking the nature preserve that can easily transform into a home office or 4th bedroom. Spend sunny afternoons at the community pool or at one of the many parks & playgrounds. Visit the weight room or community center, play pickle ball, tennis, volleyball (sand courts) or basketball. Internet & landscaping are also included in the HOA. Just blocks away, you will find one of the best farmers markets in the area (May - Sept). Highly rated schools. Brand new roof (2026), new carpet (2024), whole home HEPA filtration HVAC system, surround sound in every room, hardwood floors on the main, SS appliances, pantry, granite kitchen counters, gas hookup on back patio, workbench, tons of storage and SO much more!
Wilsonville Rd; Brown Rd; Left on Barber; Right on Costa Cir
Dwelling Type: Residential
Subdivision: VILLEBOIS
Year Built: 2005, County: US
Wilsonville Rd; Brown Rd; Left on Barber; Right on Costa Cir
Listing is courtesy of Premiere Property Group, LLC
Sign in to your account to continue