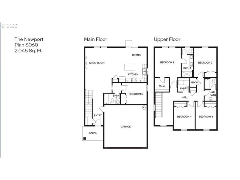
Move-in Ready Signature Series home in Forest Grove! The Newport floor plan offers 5 bedrooms, 3 bathrooms, and a spacious 2,045 square feet of thoughtfully designed living space. This two-story layout includes a full bedroom and bathroom on the main floor, ideal for a guest room or home office with added privacy. The open concept design flows through the living room, dining area, and kitchen, where you’ll find stylish shaker cabinetry, solid surface countertops, stainless steel appliances, a large kitchen island, pantry, and a gas free-standing range oven. Cozy up by the fireplace, accented with floor-to-ceiling shiplap, for the perfect movie night setting. Upstairs, four additional bedrooms provide space for everyone, while the convenient upper-level laundry room makes daily routines easier. The primary bedroom is a relaxing retreat with an en suite bathroom, double vanity, walk-in shower, and a large walk-in closet. The upstairs hall bath is centrally located for easy access. Enjoy low maintenance, usable backyard ideal for play & pets. You can enjoy and unwind in the tranquility of the idyllic peaceful country charm hometown living! Surrounded by picturesque and scenic views settings, and away from the hustle and bustle. Just minutes away from HWY 26/Sunset HWY and major employers such as Keizer Permanente, OHSU Hillsboro, Genentech, Qorvo, INTEL, NIKE, St. Vincent Hospital, Winco, Hillsboro Airport & many more! Low Rate & Closing Costs Incentives available with the use of our preferred lender! Reach out for more details. Photos are representative of plan only and finishes may vary as built.
Check IN Model home: 3594 Main St. Forest Grove, Oregon 97116
Dwelling Type: Residential
Subdivision: N/A
Year Built: 2025, County: US
Check IN Model home: 3594 Main St. Forest Grove, Oregon 97116
Listing is courtesy of D. R. Horton, Inc Portland
Sign in to your account to continue