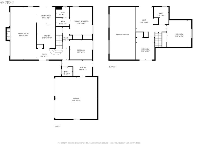
Set on a rare and beautifully usable 0.79 acre lot just minutes from downtown Newberg, George Fox University, and the renowned Dundee Hills wine country, this meticulously cared for property offers a unique combination of space, privacy, and convenience that is rarely found this close to town. Built in 1978, the home features a versatile floor plan filled with natural light and thoughtful design. The main level includes a primary bedroom with ensuite bathroom along with a second bedroom, offering comfortable main level living options. The vaulted living room serves as the heart of the home, with expansive windows that flood the space with natural light and highlight the soaring ceilings. A large stone faced fireplace with gas insert anchors the room and creates a warm, inviting atmosphere. The kitchen connects seamlessly to outdoor living, where a covered patio just off the kitchen provides the perfect setting for relaxing or entertaining. Upstairs, a loft style family room offers additional flexible living space and opens to a private deck ideal for enjoying peaceful mornings or evening sunsets. Two additional bedrooms and a full bathroom complete the upper level. The property grounds feature diverse landscaping with mature plantings, open lawn areas, and room to garden, play, or simply enjoy the peaceful setting. In addition to the attached two car garage, the property includes an impressive detached three bay workshop/garage with over 3,200 square feet, complete with a half bathroom, lofted storage areas, and an office space. Previously used as an auto repair shop, the building offers incredible potential for a car enthusiast, hobbyist, or small business owner. Recent updates include AC replaced in 2025, water heater replaced in 2024, electrical board updates in 2025, and fresh interior paint in 2026; making this a truly special opportunity to enjoy space, versatility, and small-town charm.
Pacific Hwy to NE Dayton Ave
Dwelling Type: Residential
Subdivision: N/A
Year Built: 1978, County: US
Pacific Hwy to NE Dayton Ave
Listing is courtesy of eXp Realty, LLC
Sign in to your account to continue