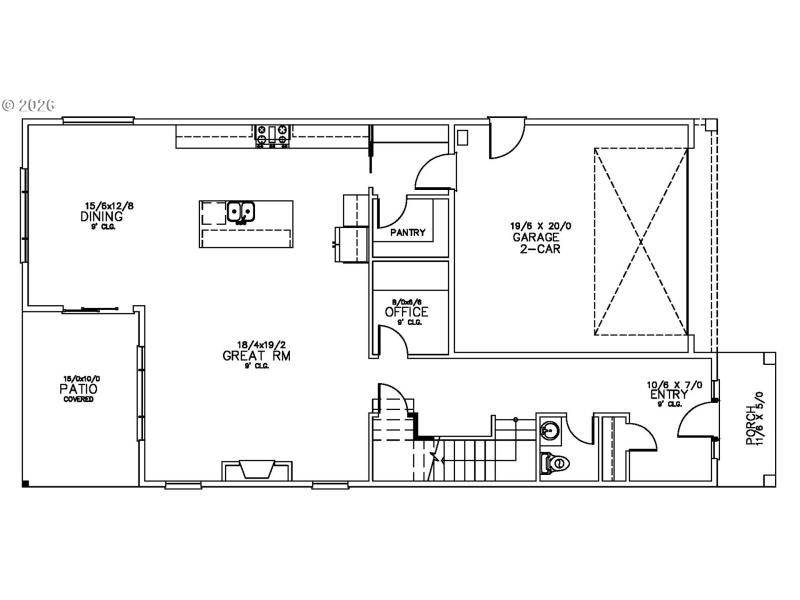
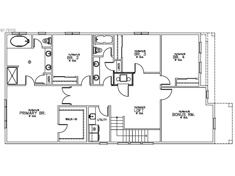
Home is under construction and will be ready mid-April. See sales rep for current promo. Step into this beautifully designed modern home featuring a bright, open-concept main level perfect for everyday living and entertaining. The spacious great room flows seamlessly into the dining area and kitchen, complete with a large island, ample cabinetry, and a generous walk-in pantry for all your storage needs. A dedicated main-floor office provides the ideal space for working from home, while the covered patio extends your living space outdoors.Upstairs, unwind in the private primary suite featuring a large walk-in closet, dual vanities, and a well-appointed ensuite bath. Three additional bedrooms offer flexibility for family, guests, or hobbies, along with a centrally located laundry room for added convenience. A versatile loft and separate bonus room create multiple options for relaxing, entertaining, or play.With thoughtful design throughout, including a 2-car garage, functional storage spaces, and modern layout, this home blends comfort, flexibility, and style for today’s lifestyle.
SW Stafford Road x SW Frog Pond Lane x SW Windflower St
Dwelling Type: Residential
Subdivision: N/A
Year Built: 2026, County: US
SW Stafford Road x SW Frog Pond Lane x SW Windflower St
Listing is courtesy of Stone Bridge Realty, Inc
Sign in to your account to continue