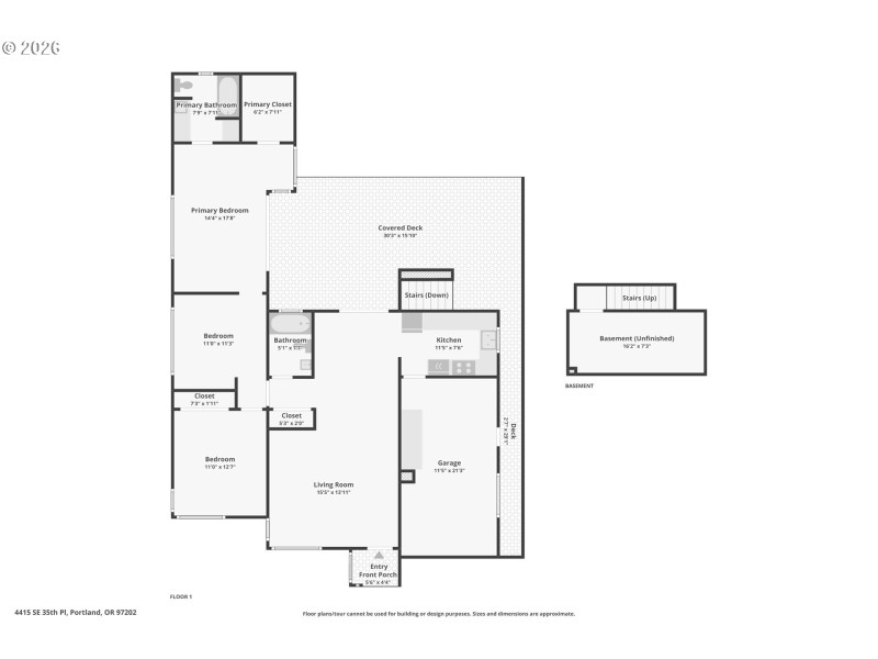
Charming 2-bedroom, 2-bath 1,434 sq.ft. home with an office/nursery/ flex space in the heart of the desirable Creston–Kenilworth neighborhood. Tucked on a quiet street yet close to everything Southeast Portland has to offer, this home provides easy access to Reed College, Trader Joe’s, shopping, local restaurants, and some of the area’s favorite coffee shops. Inside, newly installed luxury vinyl plank flooring adds a fresh, modern feel to the main living spaces, while brand-new carpeting brings comfort to both bedrooms. The home features a generous primary suite with a walk-in closet and a sliding door that opens to a covered deck—perfect for relaxing outdoors year-round. The space formerly used as the garage has been converted into a workshop with its own exterior door, offering great flexibility. It could easily function as a family room, art studio, creative workspace, or hobby area depending on your needs. Washer and dryer hookups are also included for added convenience. Major updates provide peace of mind: Exterior paint completed last year. The property is also home to a beautiful heritage walnut tree that adds character and shade to the outdoor space. A wonderful opportunity to enjoy comfortable living in one of Southeast Portland’s most loved neighborhoods with parks, cafes, and everyday conveniences just minutes away. [Home Energy Score = 5. HES Report at https://rpt.greenbuildingregistry.com/hes/OR10245786]
OR-99E S and SE Holgate Blvd
Dwelling Type: Residential
Subdivision: N/A
Year Built: 1950, County: US
OR-99E S and SE Holgate Blvd
Listing is courtesy of Redfin
Sign in to your account to continue