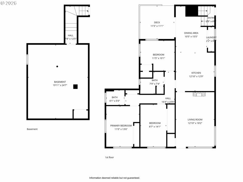
Charming and full of potential, this 3-bedroom, 1.5-bath home offers comfortable living with a scenic touch. Enjoy a spacious country kitchen with stunning views of Mount St. Helens right from your window, plus an inviting eating area that opens to a deck—perfect for entertaining or relaxing outdoors. The versatile basement provides ideal space for a game room, home gym, or flex area to suit your needs. With RV coverage and a convenient location near the marina, you’ll love having easy access to river activities like fishing and paddle boarding. A wonderful opportunity to enjoy both comfort and outdoor lifestyle!
Hwy 30, East on Millard, Right on Old Portland Road
Dwelling Type: Residential
Subdivision: N/A
Year Built: 1939, County: US
Hwy 30, East on Millard, Right on Old Portland Road
Listing is courtesy of MORE Realty
Sign in to your account to continue