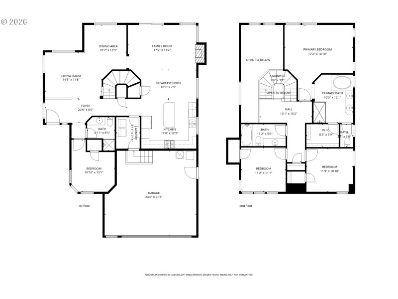
Traditional style two level home located in one of the Westsides most desirable neighborhoods, Bethany Terrace. Enter to vaulted and bright foyer that opens seamlessly to the formal living and dining rooms. Well maintained and ever-popular hardwood floors throughout main level. Kitchen with gas cooking, tile counters, pantry, eating bar, breakfast nook. and built-in microwave looks out on family room with gas fireplace, tile surround, and slider access to yard. Bedroom and full bathroom on main level! Centralized spindle staircase leads upstairs to landing area with room for reading nook. Upper level primary suite with soaker tub, shower, dual sinks, and walk-in closet. Remainder of second level includes two additional bedrooms and a shared bathroom with tile counters. Home equipped with central AC, New Furnace (2026) and fully paid for solar panels. Located less than a mile from the shops and restaurants of Bethany Village and just minutes to golf, freeway access, Nike, multiple Intel campuses and more.
From NW Laidlaw Road, N on Skycrest Parkway, E on Lilium Drive, N on Crady Lane
Dwelling Type: Residential
Subdivision: Bethany Terrace
Year Built: 1999, County: US
From NW Laidlaw Road, N on Skycrest Parkway, E on Lilium Drive, N on Crady Lane
Listing is courtesy of Barbara Nelson Realty Gp., LLC
Sign in to your account to continue