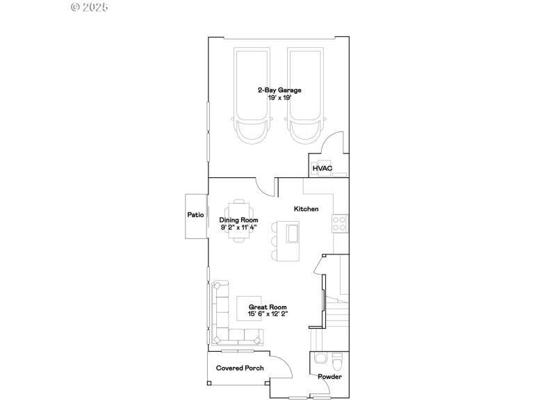
This new construction home by Lennar is part of South River Terrace, set among shopping, dining, golf, and greenspace with excellent schools and nearby freeway access. The Tumalo plan features a modern two-story design with a spacious open first floor blending the kitchen, dining area, and great room. Upstairs, a versatile loft provides extra flexibility along with three bedrooms, including the generous primary suite with a private bath and walk-in closet. Interior highlights include quartz countertops, shaker-style cabinets, stainless steel appliances, two-tone paint with painted trim, LVP flooring in the kitchen and entry, and LVT flooring in baths. This home also comes with landscaping, fencing, central air conditioning, a refrigerator, washer and dryer, and blinds—all at no extra cost! Located on Homesite 22, this home is expected to be complete in March 2026. Flex credit/closing cost incentive available when financing with preferred lender! Use towards rate buydown and closing costs. Rendering is artist conception only. Photos are of a similar home, features and finishes will vary.
Welcome Home Center address is 16616 SW Rubicon Lane, Tigard OR
Dwelling Type: Residential
Subdivision: N/A
Year Built: 2026, County: US
Welcome Home Center address is 16616 SW Rubicon Lane, Tigard OR
Listing is courtesy of Lennar Sales Corp
Sign in to your account to continue