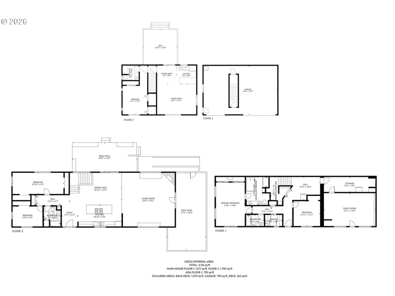
Located in the heart of West Linn, this property offers a rare combination of privacy, flexibility, and usable land on nearly one acre. The main residence features an oversized open concept kitchen, dining, and living room designed for everyday living and gathering, along with recent updates including interior paint, new carpet in 2025, and a roof installed in 2023. The outdoor setting includes a grassy backyard, play structure, mature trees, and a peaceful stream that adds natural beauty to the landscape. A detached approximately 795 square foot ADU significantly expands the living options with one bedroom, one bathroom, a full kitchen, a three car garage, and additional storage, creating a well-designed solution for multigenerational living, extended household arrangements, or flexible long-term living needs. This layout allows for both connection and separation, offering independence and privacy while remaining part of the same property. All of this is set in a highly desirable West Linn location with convenient access to local amenities, services, and everyday essentials.
Willamette Drive to Burns Street
Dwelling Type: Residential
Subdivision: N/A
Year Built: 1952, County: US
Willamette Drive to Burns Street
Listing is courtesy of Robbins Realty Group
Sign in to your account to continue