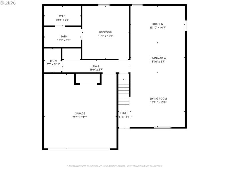
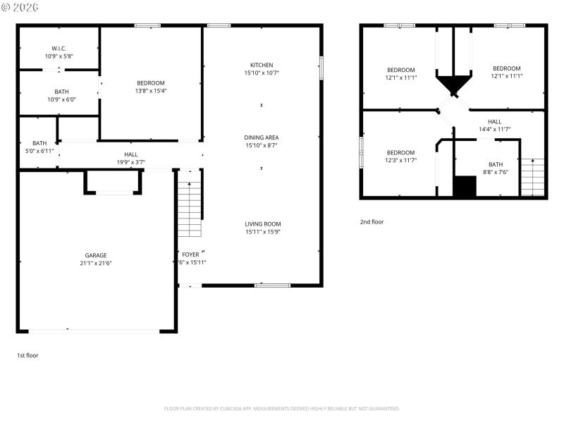
Built in 2022 and impeccably maintained, this 4-bedroom, 2.5-bath two-story home offers modern finishes, open-concept living, and beautiful views on a generous 0.28-acre lot. The main living area features vaulted ceilings and abundant natural light, creating a bright and airy feel throughout. The kitchen is thoughtfully designed with granite countertops, soft-close cabinetry, subway tile backsplash, and Samsung appliances (all included except washer and dryer). Granite surfaces continue into the bathrooms for a cohesive, upgraded finish. The spacious primary suite includes a double vanity and well-appointed bath, while the guest bathroom offers a full tub. Flooring includes a blend of carpet and durable vinyl for both comfort and functionality. Outdoor spaces have been enhanced with extended front and back patios, newly installed front lawn with stone walkway accents, and open views with no HOA restrictions. The yard is clean and ready for customization, offering plenty of room to create your ideal outdoor space. This home includes an attached garage with additional driveway parking, and great curb appeal. Move-in ready and better than new.
From town, head SW on OR-11 towards 3rd ave, turn left onto Sykes Blvd, Right onto Key Blvd
Dwelling Type: Residential
Subdivision: Vista Ridge
Year Built: 2022, County: US
From town, head SW on OR-11 towards 3rd ave, turn left onto Sykes Blvd, Right onto Key Blvd
Listing is courtesy of Williams Team Homes
Sign in to your account to continue