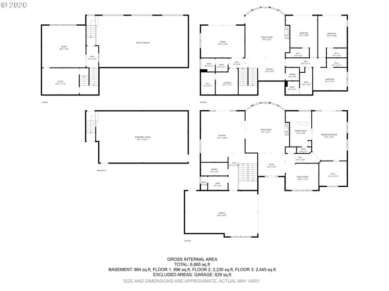
Panoramic views and a primary suite on the main level set the tone for this spacious NW Portland home near Forest Heights. With 4 bedrooms and 3.5 baths, the flexible floor plan is well-suited for multi-generational living, entertaining, or extended guest stays. Features include a large family room, a bonus room, a wet bar, and an indoor sports court, along with multiple decks on twolevels that showcase the stunning views. A rare 4-car tandem garage provides exceptional storage and functionality. The home needs updating and is priced to reflect its condition, presenting an opportunity to create a truly special residence in a premier location. Sold as-is. Seller to make norepairs. [Home Energy Score = 4. HES Report at https://rpt.greenbuildingregistry.com/hes/OR10227465]
NW Thompson Road, between NW Skyline Blvd and NW Pinnacle Dr
Dwelling Type: Residential
Subdivision: N/A
Year Built: 2003, County: US
NW Thompson Road, between NW Skyline Blvd and NW Pinnacle Dr
Listing is courtesy of Premiere Property Group, LLC
Sign in to your account to continue