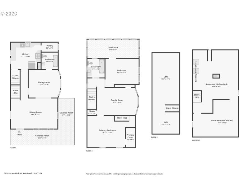
LOCATION IS EVERYTHING! *New interior paint on the main level and patio floor March 2026*Welcome to this charming and thoughtfully upgraded early century Southeast Portland gem! This inviting home blends historic character with modern efficiency and comfort. Step inside to find beautiful hardwood floors, high ceilings, and abundant natural light streaming through bay windows on two levels. The spacious living and dining areas create a warm, welcoming atmosphere, while the kitchen offers functionality and style with solid surface counters, a walk-in pantry, and built-in appliances—perfect for everyday living. Upstairs, you’ll find comfortable bedrooms and a versatile, fully remodeled attic loft space—ideal for a home office, studio, or flex area. Outside, enjoy a fully fenced yard with a covered patio, wrap-around porch, and seasonal blooms including fragrant lilacs. Pet lovers will appreciate the thoughtful touches like a rear doggy door and enclosed second-floor catio. This property also features rare and valuable upgrades including paid-off solar panels, EV-ready setup, and two separate one-car garages with additional driveway parking. Potential to convert back into a duplex! With its blend of charm, sustainability, and smart updates, this home offers an exceptional opportunity to enjoy the best of Portland living. [Home Energy Score = 2. HES Report at https://rpt.greenbuildingregistry.com/hes/OR10116372]
SE 25th & SE Yamhill
Dwelling Type: Residential
Subdivision: N/A
Year Built: 1908, County: US
SE 25th & SE Yamhill
Listing is courtesy of Redfin
Sign in to your account to continue