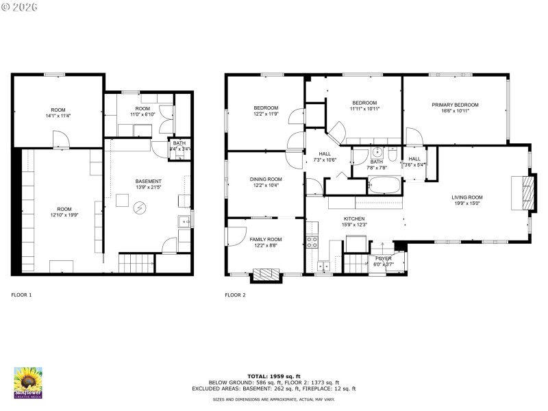
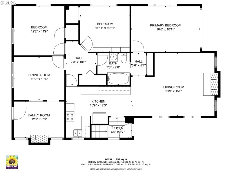
Dream opportunity! CM2 zoning allows for commercial and residential use. Established Nana’s Guilty Pleasure Food Cart on-site (business and cart sold separately). This versatile property offers 3 bedrooms, 1 bath, and 2,682 sq ft with flexible layout ideal for multi-generational living. Double access enhances functionality and potential. Recent updates include new kitchen flooring and fresh interior paint in kitchen and side entry. Main level features full bath; lower level includes additional toilet. Stay comfortable year-round with A/C. Long 75’ driveway provides ample off-street parking. Detached garage and fenced yard add convenience. Incredible live/work or investment potential—don’t miss this one!
Use GPS SE Milwaukie Ave.
Dwelling Type: Residential
Subdivision: N/A
Year Built: 1925, County: US
Use GPS SE Milwaukie Ave.
Listing is courtesy of Windermere Northwest Living
Sign in to your account to continue