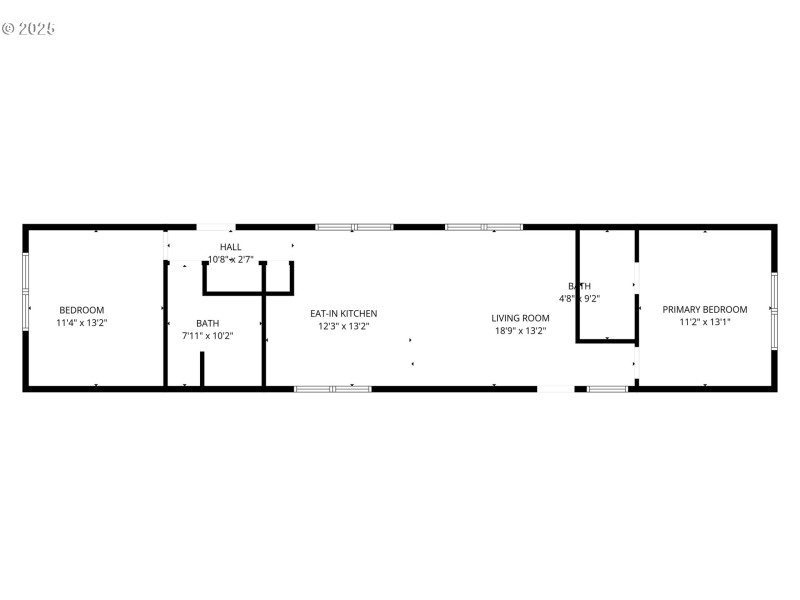
From the rolling hills of wine country and tucked away in beautiful Dundee, comes a beautifully updated home that shows true pride of ownership. This thoughtfully improved residence features two spacious bedrooms, each with its own full bathroom. One bathroom offers a stylish tile walk-in shower, while the other includes a tile shower and soaking tub combo, both accented by solid-surface countertops and tile flooring for a modern touch. The open-concept great room provides an inviting space that blends the living, dining, and kitchen areas seamlessly. The kitchen shines with updated cabinetry, solid-surface countertops, and stainless steel appliances, ready for everyday cooking or entertaining. Durable laminate flooring runs throughout the home, complementing the fresh interior and exterior paint. Enjoy year-round comfort with the updated heating and cooling system, and the energy efficiency of double-pane vinyl windows. Outdoor living is easy with large covered decks on both sides, ideal for relaxing or hosting friends. A detached storage shed and covered carport provide convenience and extra space for your belongings. Located in a well-maintained all-ages community, this home offers low space rent. A perfect blend of value, comfort, and modern updates, this move in ready gem in Dundee is one you won’t want to miss!
99W onto SW 9th St, left onto SW Alder St
Dwelling Type: Residential
Subdivision: N/A
Year Built: 1979, County: US
99W onto SW 9th St, left onto SW Alder St
Listing is courtesy of Coldwell Banker Professional
Sign in to your account to continue