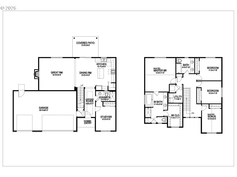
New Chad E Davis Construction! This modern two-story home has 9ft main floor ceilings and a great room with fireplace. The main level bedroom has an adjacent full bath making this an excellent choice for multi-generational living. The well-appointed kitchen offers quartz counters a generous island, ss appliances and a full tiled backsplash with subway tile. The vaulted primary suite has a full bath with soaking tub and generous walk in closet. The yard comes fully fenced and professionally landscaped with irrigation. Taxes TBD. No HOA.
Main St then S. on 7th to Cleveland St.
Dwelling Type: Residential
Subdivision: JR MEADOWS
Year Built: 2026, County: US
Main St then S. on 7th to Cleveland St.
Listing is courtesy of Berkshire Hathaway HomeServices NW Real Estate
Sign in to your account to continue