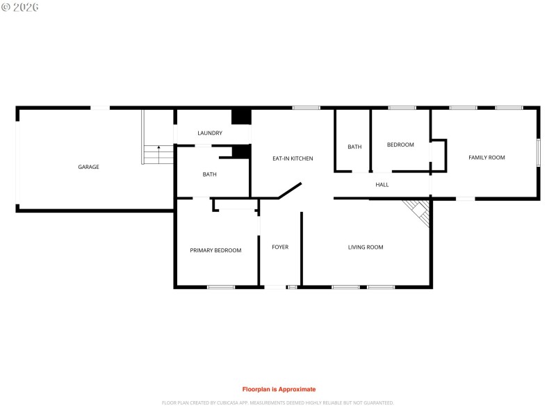
Well-maintained single-level home built in 2004, offering 2 bedrooms, 2 full baths, plus a versatile bonus room ideal for a home office, den, studio, or guest space. The second bedroom is equipped with a Murphy bed, enhancing flexibility and functionality. This furnished 1,212 sq ft residence features vaulted ceilings and a cozy fireplace in the living room, along with new stainless steel kitchen appliances. The primary bedroom includes an en suite bath and is thoughtfully located on the opposite end of the home from the additional bedrooms, offering added privacy. A dedicated laundry room/mud room connects the garage directly to the kitchen for everyday convenience. Multiple porches extend the living space outdoors, with access from the entry way and bonus room. The garage access is located off the driveway, with decked pathways leading to an east-facing front door through a secluded, maintained yard filled with local trees, plants, and shrubs. Situated in the historic coastal town of Port Orford, near Cape Blanco State Park, Port Orford Heads State Park, and iconic Battle Rock Park. Centrally located close to shopping, dining, the post office, and essential services offering the ideal balance of coastal tranquility and in-town convenience.
FROM 101, EAST ON 19TH ST, CROSS OVER WASHINGTON ST, SECOND HOUSE ON LEFT. SIGN AT DRIVEWAY
Dwelling Type: Residential
Subdivision: N/A
Year Built: 2004, County: US
FROM 101, EAST ON 19TH ST, CROSS OVER WASHINGTON ST, SECOND HOUSE ON LEFT. SIGN AT DRIVEWAY
Listing is courtesy of National Real Estate
Sign in to your account to continue