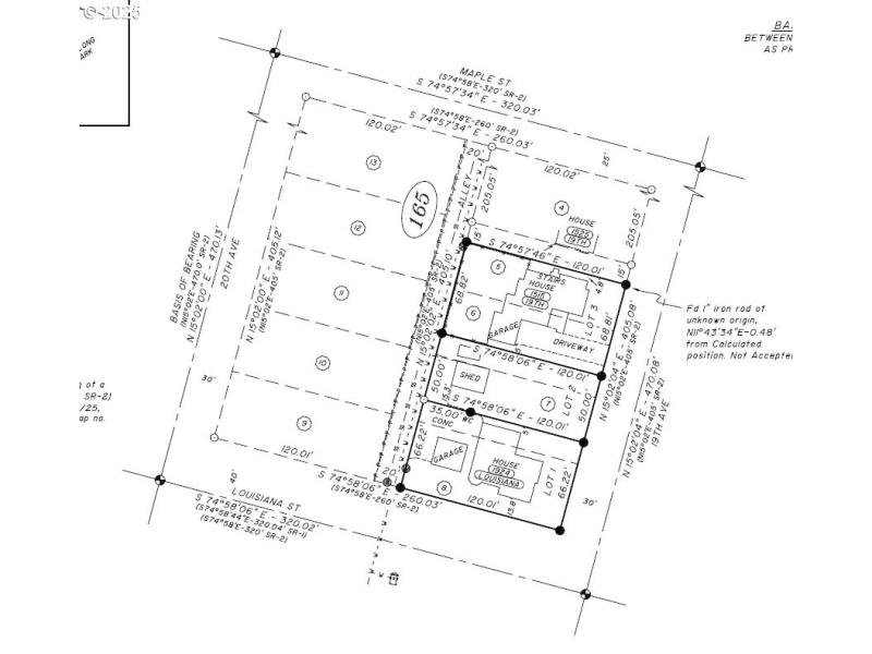
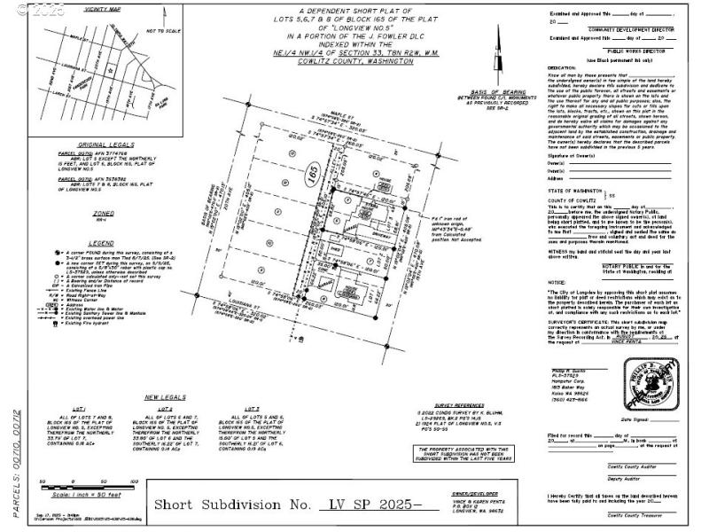
Discover an exceptional opportunity to build your dream home or investment property in the heart of Longview’s Old West Side Neighborhood. This spacious 6,000-square-foot lot measuring 50 feet wide by 120 feet deep offers an ideal blend of convenience, character, and community. Situated in one of Longview’s most charming areas, this property combines classic neighborhood appeal with proximity to some of the city’s most beloved landmarks and amenities. With water, sewer, and electrical utilities available in the alley, this parcel is ready for your vision. Whether you’re planning a custom single-family home or exploring other possibilities (subject to city approval), you’ll appreciate the flexibility and potential this well located lot provides. The level terrain and alley access make for convenient construction and future property maintenance, rare features that add value and ease to your building plans. Enjoy a lifestyle that’s connected to nature and community. Lake Sacajawea Park, just minutes away, is a local treasure offering scenic walking trails, picnic areas, gardens, and playgrounds. Spend your mornings strolling along the lakefront paths or relaxing beneath the shade of mature trees, all within easy reach of your new address. The Civic Circle, Longview Library, Post Office, and local schools are all nearby, making this location ideal. The Old West Side is known for its wide, tree lined streets, historic charm, and strong sense of history. Whether you’re a builder seeking your next project site or a homeowner ready to create something uniquely yours, this lot offers the perfect canvas. Seller Financing is Preferred.
I-5 Exit 39, SR 4/Allen St W to West Main St W to Washington Way W to Civic Circle W to 19th Ave N.
Dwelling Type: Land
Subdivision: Short Plat LV 2025-
Year Built: N/A, County: US
I-5 Exit 39, SR 4/Allen St W to West Main St W to Washington Way W to Civic Circle W to 19th Ave N.
Listing is courtesy of Keller Williams Realty
Sign in to your account to continue