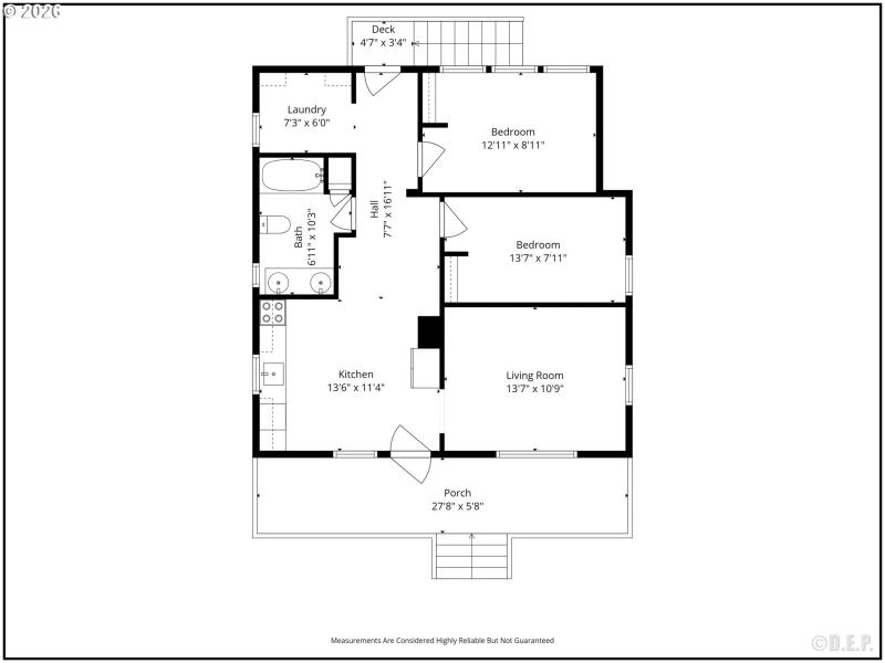
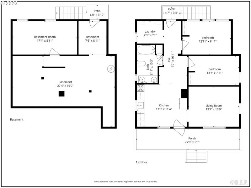
All of the hard work is done for you here and ready to move in. Open kitchen/dining room with all new appliances, cabinets and granite countertops. Adorable 2 bedrooms, bathroom and laundry room on the main level. The ductless heat pump gives you efficient heating and cooling to keep your comfortable during summer and winter months. You will appreciate the covered front porch and the large backyard where you could BBQ and garden. Basement could be a workshop and/or storage for all the extras in your life. All new LVP flooring, sheetrock and paint throughout. New hardi-plank siding too. Well worth the look!
Hwy 30 to Deer Island Rd, L on N 9th to house on right
Dwelling Type: Residential
Subdivision: N/A
Year Built: 1923, County: US
Hwy 30 to Deer Island Rd, L on N 9th to house on right
Listing is courtesy of RE/MAX Powerpros
Sign in to your account to continue