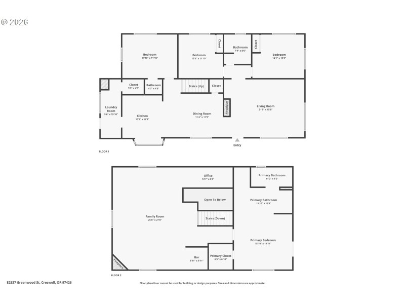
Nearly 3000 SQFT, 3-bedroom with office or 4th bedroom, 2.5-bath home offering versatile living spaces in a private setting with convenient access to town. The home features tall ceilings, abundant natural light, and a functional floor plan that includes both living and family rooms, a kitchen with a peninsula counter for casual seating, and a dedicated dining area. The upstairs primary suite overlooks the property and is accompanied by a second living space with a built-in bar, providing flexibility for entertaining, recreation, or additional lounge space. Exterior improvements include a detached studio suitable for guest quarters, home office, or creative use, a 24x30 shop, stalls, two fenced pastures, and an outdoor arena area with potential for restoration. Additional features include RV parking, ample storage, garden space, mountain views, and a peaceful setting well suited for those seeking space, usability, and lifestyle-oriented living.
Market to Greenwood
Dwelling Type: Residential
Subdivision: N/A
Year Built: 1946, County: US
Market to Greenwood
Listing is courtesy of Triple Oaks Realty LLC
Sign in to your account to continue