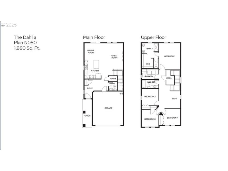
New construction home in Forest Grove! The Dahlia floor plan is a beautiful home that features 4 bedrooms, 2.5 bathrooms, with a loft on the second floor that brings in ample amounts of natural light. There’s a light and bright open concept living space with tall ceilings and luxury features starring a kitchen with solid surface countertops, shaker cabinetry, a roomy pantry, and an island that provides ample space for food preparation and extra seating. The kitchen comes equipped with lavish stainless-steel appliances including a free-standing gas range oven, dishwasher, and microwave with vent hood. The upstairs loft space offers a versatile area that can be used as an entertainment room or play area. The laundry room is located on the upper floor for swift convenience. The primary bedroom offers a true retreat with a spacious walk-in closet, double vanity sink, and a walk-in shower. Enjoy low maintenance, usable backyard ideal for play & pets. You can enjoy and unwind in the tranquility of the idyllic peaceful country charm hometown living! Surrounded by picturesque and scenic views settings, and away from the hustle and bustle. Just minutes away from HWY 26/Sunset HWY and major employers such as Keizer Permanente, OHSU Hillsboro, Genentech, Qorvo, INTEL, NIKE, St. Vincent Hospital, Winco, Hillsboro Airport & many more! Low Rate & Closing Costs Incentives available with the use of our preferred lender! Reach out for more details. Photos are representative of plan only and finishes may vary as built.
Check IN Model home: 3594 Main St. Forest Grove, Oregon 97116
Dwelling Type: Residential
Subdivision: N/A
Year Built: 2025, County: US
Check IN Model home: 3594 Main St. Forest Grove, Oregon 97116
Listing is courtesy of D. R. Horton, Inc Portland
Sign in to your account to continue