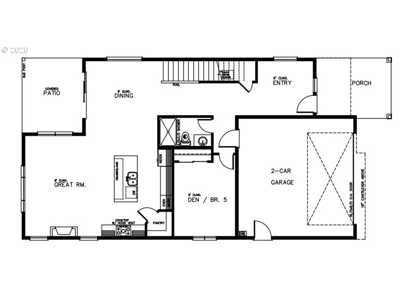
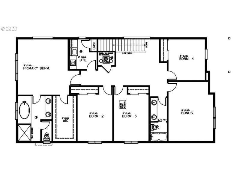
Welcome home to this stunning, designer-finished new construction home in Wilsonville’s most sought-after community. With 2,861 sq ft, this thoughtfully designed home offers 5 bedrooms, 3 baths, and a spacious bonus room, plus a rare main-level bedroom with a full bath, perfect for guests, multigenerational living, or a private home office. At the heart of the home, the gourmet kitchen shines with stained shaker-style custom cabinetry and quartz slab countertops (in the kitchen and all baths), paired with a premium Whirlpool appliance package: a 36” gas cooktop, built-in wall oven and microwave, stainless dishwasher, and a powerful chimney vent hood.Comfort and efficiency come standard with Earth Advantage Gold certification and central A/C. Outside, front and rear landscaping are included, along with stained cedar fencing—so you can move in and start enjoying your outdoor space right away.A beautiful blend of style, function, and high-performance living—don’t miss your chance to own in Wilsonville’s hottest new construction neighborhood.
SW Stafford Road x SW Frog Pond Lane x SW Windflower St
Dwelling Type: Residential
Subdivision: Frog Pond Overlook Lot 5
Year Built: 2026, County: US
SW Stafford Road x SW Frog Pond Lane x SW Windflower St
Listing is courtesy of Stone Bridge Realty, Inc
Sign in to your account to continue