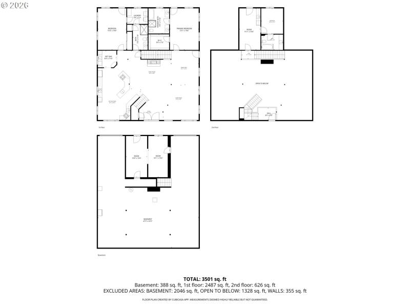
Perched high above the city of Dallas, this extraordinary chalet offers a rare blend of striking architecture, sustainable design, and breathtaking panoramic views stretching across the valley to Mount Hood. Thoughtfully built with an intentional focus on green living, the home was designed to harmonize with its natural surroundings while delivering exceptional comfort and craftsmanship. Step through the front door into a dramatic great room defined by soaring vaulted ceilings, exposed wood beams, and expansive windows that frame the stunning landscape beyond. At the heart of the home is a truly distinctive double kitchen—two integrated cooking and preparation areas designed for both everyday living and elevated entertaining. A charming built-in dining nook, along with a butler’s pantry and dedicated wine room, completes the space with both function and sophistication. The main level features two beautifully appointed bedroom suites, each with its own luxurious full bath, creating a private retreat for residents and guests alike. Upstairs, a self-contained suite offers exceptional flexibility with a kitchenette, bedroom, and full bath—perfect for extended guests, or multigenerational living. The lower level is equally impressive, offering a large storage or office room, an expansive workshop, and a tuck-under two-car garage, all finished with durable epoxy flooring. Radiant hot-water heating provides efficient, even warmth throughout the home, while solar panels—discreetly positioned above the garage—support the home’s thoughtful energy design. A professionally maintained green roof enhances both sustainability and architectural character, with the drainage mat and vegetation recently evaluated and refreshed in December 2025. The home sits at the summit of a hill accessed by private easement, overlooking nearly 60 acres dedicated to the Confederated Tribes of Grand Ronde, preserving the sense of privacy, open space, and natural beauty.
Liberty Rd to Stiles Rd to Private Drive
Dwelling Type: Residential
Subdivision: N/A
Year Built: 2008, County: US
Liberty Rd to Stiles Rd to Private Drive
Listing is courtesy of Premiere Property Group, LLC
Sign in to your account to continue