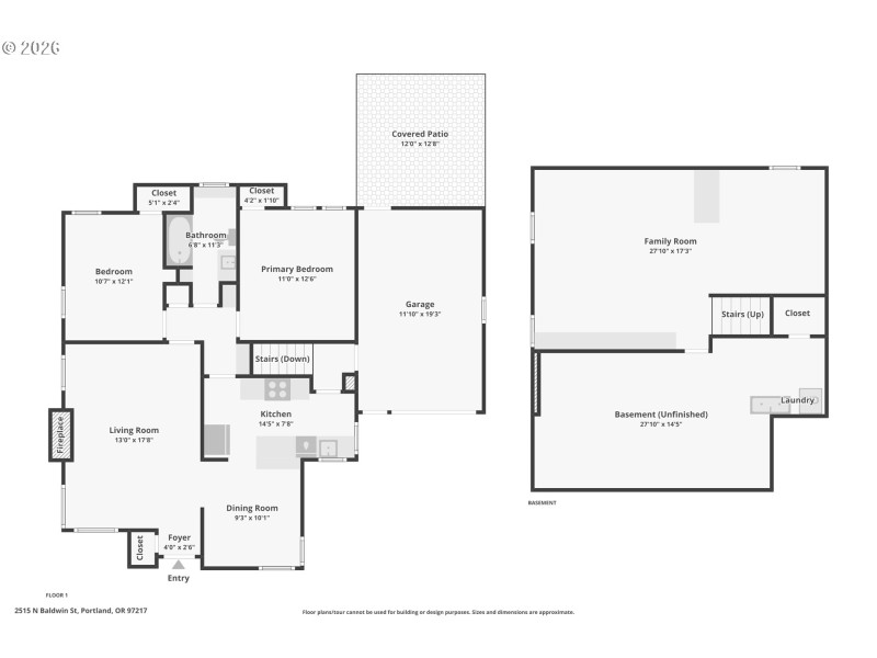
Super cute Kenton bungalow offering 2 bedrooms and 1 bath, filled with charm and abundant natural light throughout. The inviting living room features a cozy fireplace and gleaming oak floors, creating a warm and welcoming atmosphere. A fully remodeled kitchen opens to the dining area, creating a seamless layout that’s perfect for entertaining, while a brand-new furnace adds comfort and peace of mind. Both bedrooms are bright and inviting, overlooking the spacious backyard. The updated bathroom blends vintage character with modern touches, featuring the original vanity table alongside stylish new tile. Downstairs, the high-ceiling basement expands the living space with a comfortable family room, built-ins, a vintage bar, and a dedicated game area—ideal for relaxing or hosting guests. The space also offers excellent potential for additional bedrooms and a future bathroom, providing flexibility for growth or multi-functional living. Ample storage is found throughout the home, including a convenient one-car garage. Enjoy outdoor living on the backyard patio, with plenty of room to garden. Located just blocks from Kenton Park, as well as popular shops, restaurants, and cafes, this home offers both comfort and convenience. [Home Energy Score = 4. HES Report at https://rpt.greenbuildingregistry.com/hes/OR10198064]
Lombard then North on Delaware then west on Baldwin
Dwelling Type: Residential
Subdivision: N/A
Year Built: 1942, County: US
Lombard then North on Delaware then west on Baldwin
Listing is courtesy of Redfin
Sign in to your account to continue