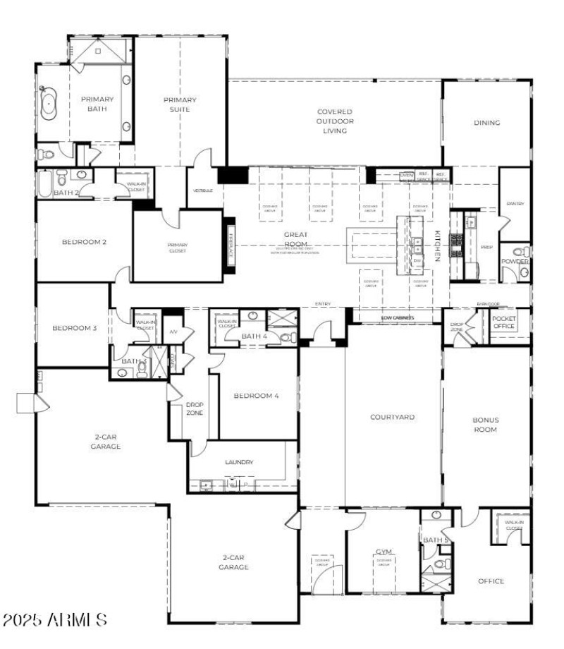
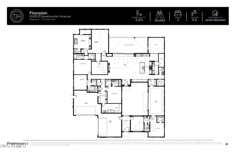
Located on a private oversized cul-de-sac homesite, this is a rare opportunity to purchase a brand-new residence by Thomas James Homes while it's still in progress. Enjoy preferred pricing, the ability to personalize select design finishes, and the opportunity to secure a premier Scottsdale location. Estimated completion Fall 2026. This exceptional new construction is thoughtfully designed for both everyday living and entertaining, featuring a 4-car garage, a private guest suite, and a resort-inspired backyard with a pool and professionally landscaped grounds. Inside, the open-concept layout blends luxury and comfort with a formal dining room and expansive great room. A cozy fireplace and stacking glass doors create seamless indoor-outdoor living, ideal for Arizona's year-round lifestyle. Conveniently located near PV Mall, with close access to hiking and biking trails, and easy connectivity to area airports
Heading (West) on Cactus Rd., go (North) on n64th Street, (West) on Sweetwater Ave, (North) onn61st Place to the corner lot on your (Right)
Dwelling Type: Residential
Subdivision: SHEA NORTH ESTATES NO. 3
Year Built: 2026, County: N/A
Heading (West) on Cactus Rd., go (North) on n64th Street, (West) on Sweetwater Ave, (North) onn61st Place to the corner lot on your (Right)
Listing is courtesy of Thomas James Homes
Sign in to your account to continue