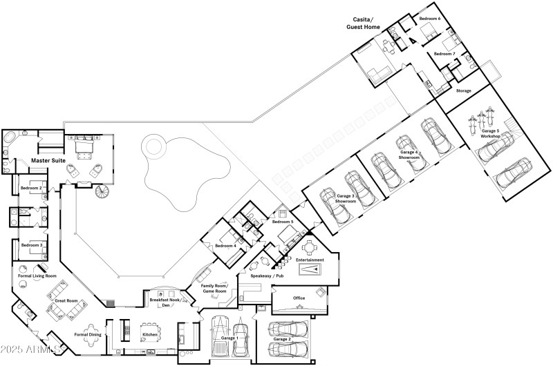
Set on over an acre of private, elevated grounds in a prime Fountain Hills location, this exceptional luxury estate offers more than 6,200 sq ft of refined living space, complemented by a 1,000+ sq ft detached guest casita, expansive multi-bay garage and flex space, and resort-style outdoor amenities. The main residence is designed for entertaining, featuring a chef's kitchen, high-end finishes, and a dedicated media room with full bar and seating for 15. A rooftop deck delivers panoramic views of Red Mountain, Four Peaks, and the McDowell Mountains. The separate casita includes two bedrooms, two baths, a full kitchen, and private entrance—ideal for guests or multigenerational living. Outdoor living centers around a stunning pool and spa with ample room to expand. The property also includes generous garage and showroom areas with polished floors and a service bay, offering flexible use for storage, hobbies, studio space, or a vehicle collection. Minutes from Shea Blvd, AZ-87, Scottsdale, and airport access, this estate delivers privacy, space, and luxury in a highly desirable location.
Take E. Shea Blvd. to E. Saguaro Blvd. (South); Turn Left on E. Last Trail Dr.; 2nd home on the Right.
Dwelling Type: Residential
Subdivision: FOUNTAIN HILLS ARIZONA NO. 412-B BLOCKS 1-3 LOTS 1
Year Built: 2004, County: N/A
Take E. Shea Blvd. to E. Saguaro Blvd. (South); Turn Left on E. Last Trail Dr.; 2nd home on the Right.
Listing is courtesy of MCO Realty
Sign in to your account to continue