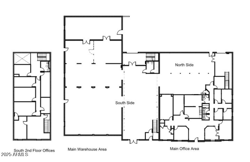
Location, Location, Location!!! Ideal opportunity for an owner/user investment property located at 1890 East Indian School Road (aka 4108 N 19th Street) including 4112 N 19th Street as additional parking, well suited for a number of uses. This property boasts a 15280 sq ft building with ~ 6080 sq ft Office 1000 sq ft of useable Loft and 8200sq ft storage, 27,800 + SF lot with a fenced and gated yard and upgraded offices, consistently and well maintained by the current owner. Price includes additional parking next door (parcel 163-29-073). Only seconds from SR 51 with Indian School Frontage, this strategically located property is perfect for either investors or owner/user. Just a block from the 51 highway, with access from either Indian School Road or 19th St, this property ... is both highly visible as well as accessible. With ample parking, multiple roll-up doors, a secured yard space and C2 Zoning, it offers the potential for a variety of commercial uses as well as a terrific investment opportunity. There is a current lease in place until July 30, 2026, providing a short term income stream. Priced at $2,700,000.00, this property is poised to increase in value as the Metropolitan Phoenix area continues to benefit from an increasing population and a variety of new business ventures. Centrally located with access to all parts of the valley, it offers a tremendous opportunity. Seller will carry with 20% down, 10% interest only up to five years, no prepayment penalty.
KEY POINTS
" OWNER/USER INVESTMENT OPPORTUNITY
" FRONTAGE ON HIGH TRAFFIC INDIAN SCHOOL ROAD
" LOCATED LESS THAN A BLOCK FROM THE 51 HIGHWAY
" EAST AND WEST ACCESS OFF INDIAN SCHOOL ROAD
" AMPLE PARKING
" ROLL-UP DOORS & FENCED YARD
" TENANT LEASE IN PLACE UNTIL JULY 30, 2026
" SELLER FINANCING
BASE INFORMATION
ASKING PRICE: $2,700,000
LAND AREA: 0.64 ACRES
BUILDING AREA: 15,280 SF
ZONING: C-2
APN: 163-29-075B & 163-29-073
2 Blocks East of SR51 on North side of Indian School Rd
Dwelling Type: Comm/Industry Sale
Subdivision: N/A
Year Built: 1957, County: N/A
2 Blocks East of SR51 on North side of Indian School Rd
Listing is courtesy of TopDog Realty
Sign in to your account to continue