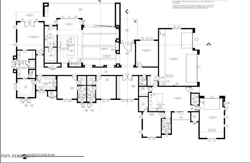
WOW! Under Contruction by ALAIR HOMES GOLD CANYON. Drywall stage. Estimated early summer 2026 completion. Check out this 5045sf custom home in Petroglyph Estates in Superstition Mountain Golf and Country Club. Warm, organic modern feel with high end finishes throughout. Super functional floor plan including four bedrooms, an office, and flex room. Attached guest suite with its own entrance, it's own private yard area, full kitchen, bedroom, walk in closet, and laundry room. Wonderful kitchen with huge island with waterfall counters, Thermador appliances and wine fridge, & extensive butlers pantry. Primary suite is a retreat in itself. Magnificant Superstition Mountain vVews from Primary suite/patio, dining, living/great room and flex room. See pictures that include floorplan, design board selections, & renderings! At ALAIR, our mission is to bring your vision to life by giving you full transparency to your project's timeline, budget, and selections. Our client control methodology empowers you with 24/7 visibility into your project, while your dedicated team of experts works to ensure you have peace of mind throughout the build. Build trust. Build great relationships. Build a beautiful home!
Listing agent is related to seller. Listing agent is builder. Final price will be determined once all selections are complete. Price is based on allowances on finish selections. Client has ability to customise finish selections.
East on US 60 for 13 miles past Power Road to mile marker 201. Left at the light for 1 mile to the Superstition Mountain gatehouse. Ask guard for directions to lot #54 in Petroglyph Estates.
Dwelling Type: Residential
Subdivision: PETROGLYPH ESTATES AT SUPERSTITION FOOTHILLS
Year Built: 2026, County: N/A
East on US 60 for 13 miles past Power Road to mile marker 201. Left at the light for 1 mile to the Superstition Mountain gatehouse. Ask guard for directions to lot #54 in Petroglyph Estates.
Listing is courtesy of My Home Group Real Estate
Sign in to your account to continue