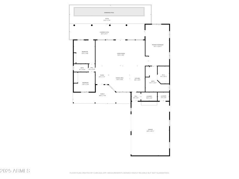
Set on just over two acres, this Southwest-style home offers space, privacy, and a layout that feels intentional and easy to live in. The great room is wide and welcoming, with tall ceilings, clerestory windows, and a wall of glass that keeps the patio and desert views in constant view. Natural light carries through the living, dining, and kitchen areas without feeling stark, creating a comfortable flow that works just as well day to day as it does when hosting. The kitchen is warm with granite counters, generous knotty alder cabinetry, and a large island that anchors the space and supports everyday routines. A spacious primary suite with an inviting layout. The en suite bath includes dual vanities, a walk-in shower and oversized walk in closet. Two additional bedrooms provide flexibility for guests, office space, or hobbies, supported by a second full bath. Tile flooring and baseboard run throughout the home.
Outdoor living is a natural extension of the home, with a covered patio in the back, full power sunshades front and rear and a 60 foot heated/cooled saltwater lap pool positioned to take in the surrounding views. The property includes a four-stall horse setup with shade and turnouts, almost a full acre of pipe rail fencing with multiple gates for easy cross fencing access, RV hookup, and an extended-length garage with room for vehicles, equipment, and storage. Miles of desert riding right from the property. Owned solar adds long-term efficiency, rounding out a property that supports a true desert lifestyle.
Enter Vista Royale from Highway US 93. Turn left on Date Creek Road and left on Calico Circle. First home on the left.
Dwelling Type: Residential
Subdivision: VISTA ROYALE
Year Built: 2003, County: N/A
Enter Vista Royale from Highway US 93. Turn left on Date Creek Road and left on Calico Circle. First home on the left.
Listing is courtesy of Tinzie Realty
Sign in to your account to continue