Prime Tempe location within easy walking distance to the Tempe Center for the Arts and Tempe Town Lake, and just one mile from Arizona State University. This well-maintained 4-unit property offers a total of 1,927 square feet and strong rental appeal in one of Tempe's most desirable areas.
Each unit features a functional kitchen-living room combo, 1 bedroom, and 1 full bath. The two north units include washer and dryer hookups. Bonus! A conceptual site plan to create a second floor addition has been developed for future expansion. A narrative has been included detailing the project , site plans are available as well. The property is masonry block construction with synthetic stucco exterior, offering durability and low maintenance. Tenants enjoy easy access and an onsite concrete parking lot with six parking spaces, a valuable amenity in this high-demand location. A complete remodel in 2012 updated all units with modern finishes, including porcelain tile flooring, baseboards, shower surrounds, and tile wainscot in all bathrooms. Kitchens were upgraded with granite countertops, European-style melamine cabinetry, black appliances (refrigerators, smooth-top stoves, and microwaves). Additional improvements include new interior doors, hardware, jambs, trim, wood window casing, double-pane aluminum windows throughout, updated electrical panels, track and recessed lighting, ceiling fans, and coaxial wiring in every room for internet connectivity. Contemporary metal corrugated siding accents the roof screen and mechanical room.
An exceptional opportunity to own a turnkey, upgraded multi-family asset in a walkable, high-demand Tempe location near arts, recreation, and ASU.
October 25, 2019
City of Tempe
Planning department
31 E. 5th St.
Tempe, AZ 85281
RE: 105 S. Hardy
Description of change
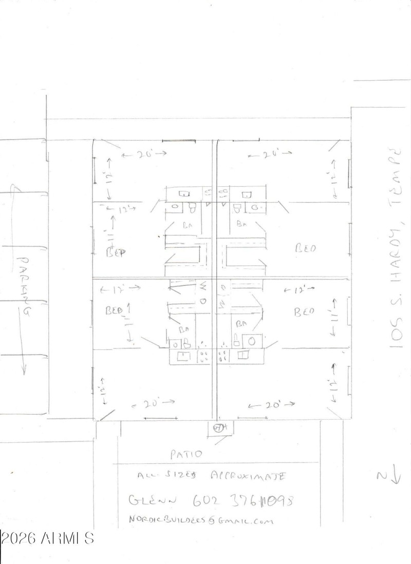
The subject property currently is a single story low sloped roof of exterior block, stucco, 4 unit building.
Existing is one bedroom, one bath and one small kitchen per unit.
New construction will be adding a second floor with a new common wall running the entire length and
height of the building north to south to divide the building into two distinct units. Each unit of the new
second floor above the existing single story building will contain one large great room, one bedroom ,
new kitchen and one bath on the second floor in each unit. The lower level of each unit of the duplex
will contain 3 bedrooms,1 bath, a common area and a laundry area. The provided parking of 6 spaces is sufficient standards for the new use. The footprint of the lower
building will remain the same with the exception of the new cantilevered deck to the north and slight
addition of 6 second floor posts steel posts to the east and west.
The existing sidewalks, west site wall, north paver patio area, concrete parking area, mature landscaping with several large trees and the existing grades will remain intact. One new sidewalk will be added along the west side to gain access to the newly created west facing door. Lower level of tannish sand finish stucco over the current first floor exterior block walls will remain as is in selected places. The current mill finish aluminum window sizes will be duplicated above on the second floor as to provide continuity. The exterior cladding will be a combination of a Fabral Cocoa Brown vertical metal siding along with delineated sections of horizontal galvalum interspersed below the window sections. The roof will consist of metal roof of a galvalum finish. The exterior soffit andfascia will be the galvalum color. The building will be fairly maintained free as it will have all prefinshed metal.
Please let me know if I may provide any more information.
Thank you.
Glenn Odegard
Nordic Properties, LLC
Nordic Builders, Inc. Lic. 160685 KB-01
SE Corner of Hardy and 1st Street
Dwelling Type: Multiple Dwellings
Subdivision: MONTERREY VILLAGE NO. 3 UNIT 1
Year Built: 1969, County: N/A
SE Corner of Hardy and 1st Street
Listing is courtesy of MMRE Advisors
Sign in to your account to continue