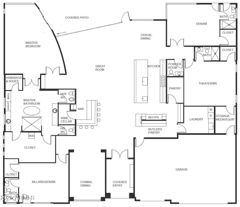
LUXURY GOLF COURSE LIVING . . . Brand New Custom Home . . . Directly on the 14th Hole of the Pinnacle Course . . . Picturesque Views of Pinnacle Peak, the Golf Course, Sunsets & City Lights . . . Chef-Inspired Gourmet Kitchen w/Pantry & Butler's Pantry . . . Relaxingly Luxurious Master Retreat & Bathroom with Separate ''His'' and ''Hers'' Water Closets, Over-sized Wardrobe Closet and Dedicated ''Handbags & Shoes'' Closet . . . Theatre Room . . . Resort Patio & Entertainment Area . . . Infinity Edge Pool with Spa, Fire Pots & Water Features . . . French-inspired Wine Cellar & Bar. . . . . . Construction has not commenced, so if you wish to make any design or style changes, we will accommodate as the lot can handle up to 7,000sf. Photos are an artist's conception of the current floor plan. Seller / Builder is very flexible regarding the design, style, floor plan, exterior elevations, finishes, etc. Buyer may change and customize all aspects. Price includes allowances for various items. The current floor plan contemplated by Seller / Builder is shown in "Photos" and is also in the ''Documents'' tab.
Architecture / Design by Jean-Michel Gillet.
Pima Road to Dynamite Blvd; East on Dynamite to 108th; North to Gate. Call lister for access beyond gate.
Dwelling Type: Residential
Subdivision: New Home Directly on Golf Course in Guard-gated Candlewood Estates at Troon North
Year Built: 2026, County: N/A
Pima Road to Dynamite Blvd; East on Dynamite to 108th; North to Gate. Call lister for access beyond gate.
Listing is courtesy of Ripson Realty
Sign in to your account to continue