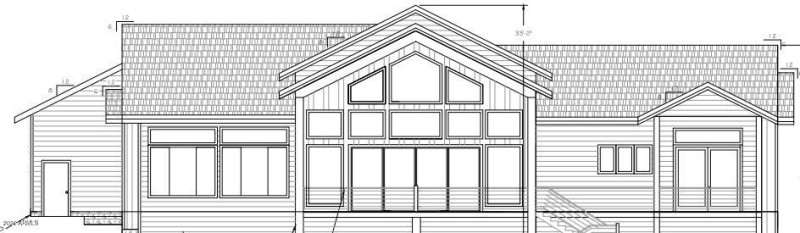
VIEWS! VIEWS! VIEWS! Have you ever dreamt about 360 degree mountain and valley views? Imagine sitting in your living room or on your back deck, fire blazing, cup of coffee in hand, listening to the wildlife while enjoying sunrises and sunsets in your own piece of paradise at about 6700' elevation. Let us build your dream home on this 4.8 acre parcel, just 10 minutes from Show Low. This floor plan is only an example of a type of home, and associated cost involved, to build it on this land. If you want something bigger or smaller, we can price out the custom home of your dreams. At this price, you could select all colors, finishes and materials with a luxurious feel. Of course, if you have distinct taste for the finer things in life, it could cost you more, but this price would provide a beautiful home that friends and family would be jealous of. Examples of included features: LP SmartSiding, Trex Deck, 40-50 year shingles, soft-close cabinetry, granite or quartz countertops, LPV flooring throughout, stainless steel appliances, fireplace and more. This lot has a long, windy cinder driveway back to the level building pad with room for a workshop. You'll be surrounded by peace and tranquility with the mature, heavily forested pinon and juniper trees. With 5 acre lots in this community, the world feels like your own. Let's discuss what kind of home you would like to build on this lot once you acquire it. Lot separately listed - MLS 6974681.
Hwy 60, 10 miles East of Show Low, take Hwy 61 at the Y. Make the 1st left on Stanford. Take the 1st right on Uphill. Go all the way to the end and make a right on Mountain Pine Rd. Lot with sign immediately on left.
Dwelling Type: Residential
Subdivision: Mountain Pine Ranch
Year Built: 2026, County: N/A
Hwy 60, 10 miles East of Show Low, take Hwy 61 at the Y. Make the 1st left on Stanford. Take the 1st right on Uphill. Go all the way to the end and make a right on Mountain Pine Rd. Lot with sign immediately on left.
Listing is courtesy of Torreon Realty
Sign in to your account to continue