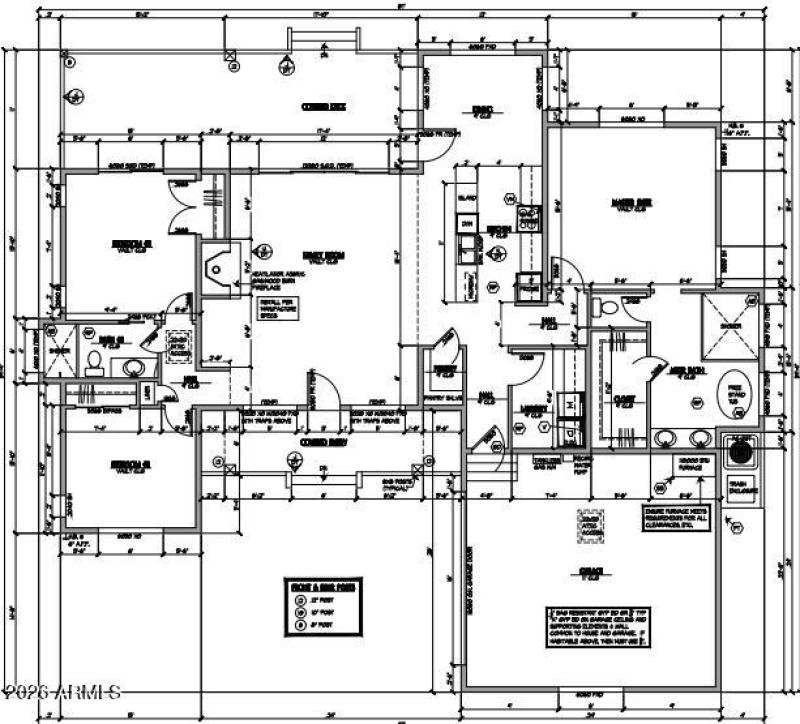
Let us build you this (or similar) custom home on a gorgeous, private, treed lot in Torreon on the golf course. This is a to-be-built spec home using the buyer's cash or construction loan. You buy the lot, and then contract with the builder to build the home of your dreams. I help you and the builder design/customize your floor plan, select all of your low maintenance, exterior materials/colors: LP Smart Siding, Trex deck, 50 year shingles, steel railings, etc. Inside you get to have fun picking all of your custom home design elements. You'll work with the custom cabinet builder, select your granite countertops, pick the tile/stone for your fireplace/ backsplash/ shower, choose your own lighting & plumbing fixtures as well as which beautiful, high grade LVP flooring (and/or carpet), and help you along the way. If you've been thinking about a get-away or full time home in Torreon and the beautiful White Mountains, this may be the perfect way to get everything you want. A brand new, customized home to your liking, set in a community among the tall pines, with 2 18-hole golf courses, a clubhouse and 2 restaurants, pool/spa, fitness center, pickleball, family center, playground, catch and release pond and so much more. Let me know how I can help you begin your journey.
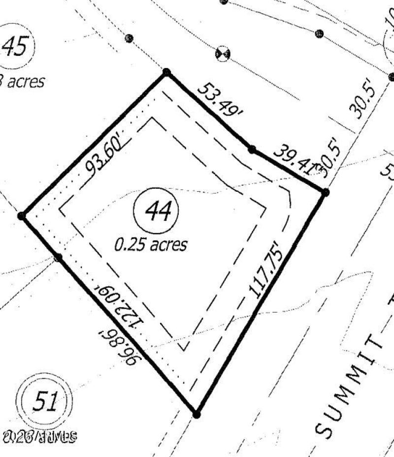
Summit Dr to Mariposa. Go through gate at Tollgate & the lot is immediately on your left just inside the gate.
Dwelling Type: Residential
Subdivision: TOLLGATE AT TORREON
Year Built: 2026, County: N/A
Summit Dr to Mariposa. Go through gate at Tollgate & the lot is immediately on your left just inside the gate.
Listing is courtesy of Torreon Realty
Sign in to your account to continue