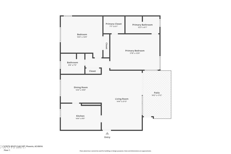
Experience resort style living in the heart of the iconic Biltmore Corridor. This impeccably maintained 2-bed, 2-bath condo spans a generous 1,416 square feet, offering a sophisticated blend of luxury and convenience.
Private Oasis: Relax on your oversized private balcony, completely surrounded by lush green landscaping, tranquil retreat perfect for morning coffee or sunset entertaining. Your monthly HOA is a true ''all-in'' value, covering A/C, heat, water, sewer, and trash, allowing you to enjoy a lock-and-leave lifestyle without the stress of multiple utility bills. Situated just steps from the world-renowned Arizona Biltmore Resort and the upscale shopping , dining at Biltmore Fashion Park, minutes away from Piestewa Peak, Camelback Mountain, and the best golf courses in AZ.
South on N 20th St. The property is located on the right.
Dwelling Type: Residential
Subdivision: BILTMORE RESERVE
Year Built: 1962, County: N/A
South on N 20th St. The property is located on the right.
Listing is courtesy of HomeSmart
Sign in to your account to continue