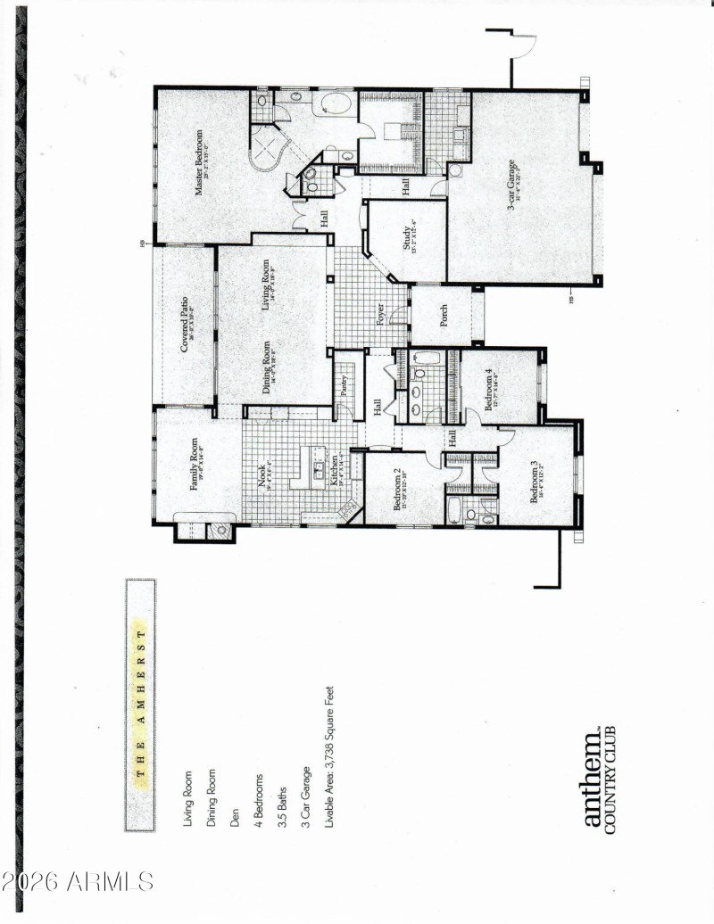
View this Wonderful Amherst model situated on a beautiful oversized mountain view lot at the end of a quiet cul-de-sac and conveniently located mid way between both clubhouses! Featuring 4 bedrooms, 3.5 baths and a den with custom built-in desk and cabinetry, this 3737 sq. ft. home is highlighted by new interior and exterior paint, 12' ceilings, 3 car garage and upgrades throughout. Stepping into your outdoor living space you are greeted by Stunning Daisy Mountain views and a natural desert wash. The oversized pie shaped lot affords 3 separate entertaining areas....a soothing inground Shasta spa, lush mature landscaping, custom hardscape, covered patio, outdoor kitchen, sitting area around gas fireplace and automated awning. Enjoy the Anthem Country Club lifestyle.....Welcome Home!
From Anthem Way E. to 1st Guard Gate- East on Anthem Club Dr, Left on Wolf Run, Left on Belfair, Right on Hazelhurst Ct, straight to home
Dwelling Type: Residential
Subdivision: ANTHEM COUNTRY CLUB
Year Built: 2000, County: N/A
From Anthem Way E. to 1st Guard Gate- East on Anthem Club Dr, Left on Wolf Run, Left on Belfair, Right on Hazelhurst Ct, straight to home
Listing is courtesy of RE/MAX Fine Properties
Sign in to your account to continue