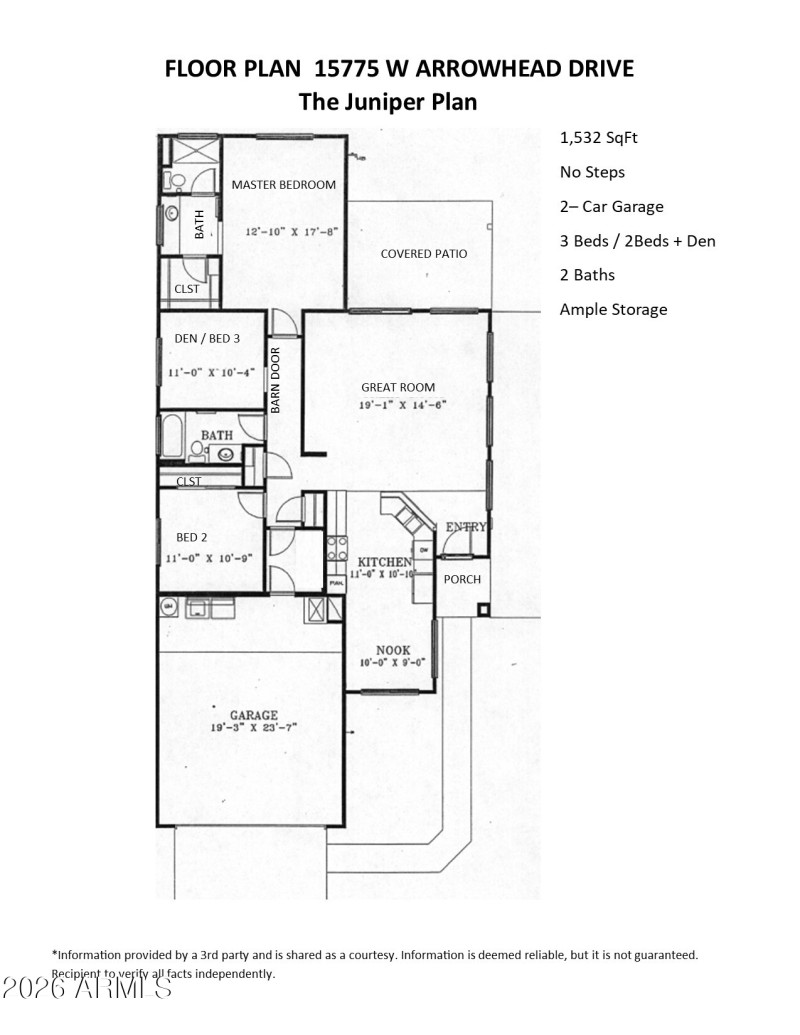
Elevate your lifestyle in the heart of The Grand. Whether you're seeking a year-round sanctuary or a seasonal escape, this charming 3-bedroom (3rd Bed or Den), 2-bathroom residence offers the pinnacle of Arizona living. Situated within Surprise's premier active adult community, you're not just buying a home—you're gaining a front-row seat to resort-style luxury. From championship golf and spirited pickleball matches to poolside relaxation, every day here feels like a vacation.You are perfectly positioned to enjoy everything the West Valley has to offer. An incredible selection of shopping and dining is just minutes away, ranging from quick daily essentials and major retail hubs to a vibrant local culinary scene.
When exiting the 303, head East on Bell Rd, then take a left onto N Sunrise Boulevard. After that turn right onto N Goldwater Ridge Dr, right onto N Amberwood Dr, left onto W Arrowhead Dr and the home is located on the right hand side.
Dwelling Type: Residential
Subdivision: THE GRAND
Year Built: 2000, County: N/A
When exiting the 303, head East on Bell Rd, then take a left onto N Sunrise Boulevard. After that turn right onto N Goldwater Ridge Dr, right onto N Amberwood Dr, left onto W Arrowhead Dr and the home is located on the right hand side.
Listing is courtesy of Russ Lyon Sotheby's International Realty
Sign in to your account to continue