Essence of the Desert, an architecturally distinct estate featured in leading design publications including Dwell and Phoenix Home & Garden and designed by architect Amit Upadhye. This home reflects a disciplined approach to form, scale, and modern living.
Set on over an acre with 100' set back and expansive views of the McDowell Mountains, the property balances privacy with a strong connection to its desert surroundings. The timeless architecture emphasizes precision and permanence, with a palette of industrial, high-quality materials-100% poured in place concrete and block construction-selected for both durability and visual impact, commercial grade floor-to-ceiling glass- flooding the space with light and views-blurring the lines between indoors and out. Volumes are carefully proportioned to deliver moments of architectural clarity alongside comfortable, livable spaces ideal for both everyday living and sophisticated entertaining.
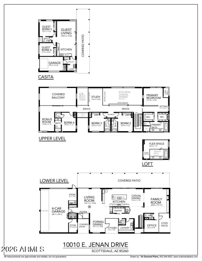
The main residence offers four bedrooms, four full bathrooms, and two half baths, organized to create a natural flow between private retreats and open living spaces. A dedicated office provides a quiet, design-forward workspace, while a gym or flex room adds versatility. The main home is complete with a four-car garage, fully integrated into the architecture, maintaining the home's clean, intentional lines.
A fully self-contained guest house enhances the estate, featuring two bedrooms, one bathroom, a full kitchen, laundry, and a private one-car garage- perfect for extended stays, multigenerational living, or hosting with complete independence.
The backyard is designed as a private outdoor retreat, anchored by a large resort-style pool, a ramada with fire feature, and an expansive grassy play area- offering rare versatility for both recreation and relaxation within a modern desert setting. With room to build on this ideal flat lot with no HOA, further customize with more garage bays, outdoor sports courts, or additional livable space.
Every element of the property reflects a commitment to thoughtful design, quality construction, and enduring architectural relevance. This is a published architectural residence that offers scale, privacy, and mountain views for the buyer who values modern design, craftsmanship, and authenticity.
Head East on Shea, South on 98th St, East on Jenan, home is on the North side of Jenan.
Dwelling Type: Residential
Subdivision: Cactus Corridor
Year Built: 2009, County: N/A
Head East on Shea, South on 98th St, East on Jenan, home is on the North side of Jenan.
Listing is courtesy of Russ Lyon Sotheby's International Realty
Sign in to your account to continue